Terrain + maison à Coursac - 24430

Terrain + maison à Coursac - 24430

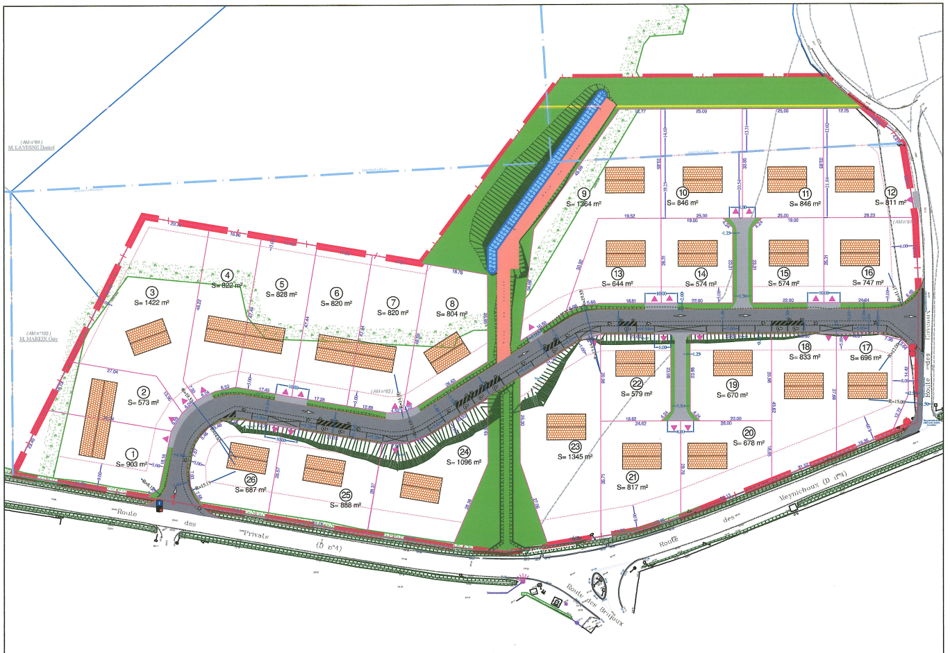
Terrain 1422 m2 | Modèle | 116 m2 | 3 Chambres

Terrain + maison
257 924 €*
Être rappelé
Demande d'information
Ajouter aux favoris
Terrain + maison
257 924 €*

Terrain 1422 m2 | Modèle
116 m2 | 3 Chambres

Être rappelé
Demande d'information

Projet Terrain 1422 m² + Maison neuve à Coursac (24430) - Nouveau lotissement Route des Privats / Meynichoux - Proche Périgueux

Réservez dès maintenant votre futur chez vous à Coursac (24430) !

Superbe terrain constructible de 1422 m² dans un nouveau lotissement en cours d'aménagement, idéal pour un grand projet familial. Profitez d'un cadre verdoyant et calme en Dordogne, dans une commune en plein développement, avec des lots déjà réservables avant finalisation des travaux.

Emplacement stratégique :
À seulement 15-20 minutes en voiture de Périgueux (environ 12 km)
Proximité gare la plus proche (Razac-sur-l'Isle ou Périgueux pour liaisons TER)
Commune dynamique avec écoles primaires, commerces locaux, services médicaux et tous les essentiels pour une vie pratique.

Ce grand terrain offre un potentiel exceptionnel : piscinable, jardin généreux, dépendances possibles... Viabilisation prévue dans le cadre du lotissement en cours (eau, électricité, assainissement – détails à confirmer lors de la réservation).

Votre projet Terrain + Maison clé en main :

D’architecture contemporaine et moderne, le modèle VIENNE est harmonieusement agencé grâce à son plan en V. Son espace nuit, composé d’une suite parentale et de 2 chambres, est complètement détaché de son espace de vie de 45 m². Etudié pour baigner vos espaces d’une lumière naturelle chaleureuse, son agencement permet de faire le lien avec votre extérieur. Certifié NF HQE, VIENNE vous offre le confort de vie que vous attendez et sera le modèle parfaitement adapté à ce terrain.

Contactez-nous dès maintenant pour plus d'informations, un plan détaillé ou une visite sur place.
Lucie Chartroulle – DCA Périgueux
06.59.82.75.99

Les modèles personnalisables éligibles pour ce terrain

Modèle

116 m2 | 3 Chambres

257 924 €

Localisation du terrain

Coursac

Vous réalisez votre projet immobilier à proximité ou à Bergerac, ville emblématique de Dordogne et du Périgord. Votre maison, construite selon vos aspirations pour répondre à votre mode de vie grâce à l’expertise de Demeures Côte d’Argent bénéficie du dynamisme de sa localisation dans la deuxième ville la plus peuplée du département.

Nos services

Pour en savoir plus

Visiter nos maisons

Pour aller visiter cette réalisation, il vous suffit de prendre rendez-vous.

Prendre rendez-vous

Contactez un conseiller

Nos conseillers sont à votre disposition pour répondre à toutes vos questions.

Être rappelé
*Le prix indiqué est hors frais de raccordements, de branchements, d’adaptation au sol et de notaire sur le terrain. Ce prix est conseillé et soumis à variation en fonction des secteurs géographiques. Il n’inclut pas les options, ni les aménagements extérieurs et intérieurs (éléments de décoration, mobilier, cuisine équipée...). Garanties et assurances obligatoires incluses (voir détails en agence). Le terrain a été sélectionné et vu pour vous, sous réserve de disponibilité et au prix indiqué par notre partenaire foncier.