Terrain + maison à Coursac - 24430
Terrain + maison à Coursac - 24430
Terrain 828 m2 | Modèle | 60 m2 | 2 Chambres
Projet Terrain 828 m² + Maison neuve à Coursac (24430) - Nouveau lotissement - Proche Périgueux
Réservez dès maintenant ce beau terrain à Coursac (24430) !
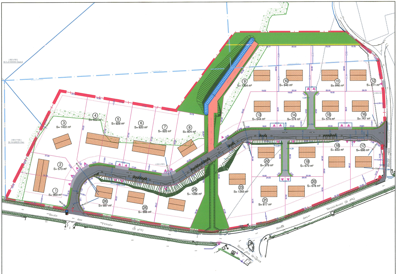
Magnifique terrain constructible de 828 m² dans un nouveau lotissement en cours d'aménagement. Un lot spacieux et bien dimensionné pour un projet familial confortable, avec jardin, piscine possible et espace extérieur généreux, dans un cadre calme et verdoyant en Dordogne.
Emplacement idéal :
À seulement 15-20 minutes en voiture de Périgueux (environ 12 km)
Proximité gare la plus proche (Razac-sur-l'Isle ou Périgueux pour liaisons TER)
Commune agréable avec écoles primaires, commerces locaux, services médicaux et toutes les commodités essentielles.
Terrain plat, piscinable, offrant un beau potentiel d’aménagement. Viabilisation prévue dans le cadre du lotissement en cours (eau, électricité, assainissement – détails à confirmer lors de la réservation). Lots déjà réservables avant la finalisation des travaux !
Votre projet Terrain + Maison clé en main :
Cette maison de 60 m2 est à la fois confortable et pas chère. Proposée à moins de 99 000 €, elle possède toutes les caractéristiques qui font de la ligne POP ! des maisons de qualité à prix très abordable :
- Optimisation des plans
- Qualité des matériaux et équipements performants
- Rapidité de construction
- Maîtrise des coûts
Vous avez besoin de plus d’espace ? Pas de problème ! La ligne POP ! vous offre un large choix de maisons pas chères, modulables et personnalisables, allant de 60 m2 à 100 m2.
Contactez-nous dès maintenant pour plus d'informations, un plan détaillé ou une visite sur place.
Lucie Chartroulle – DCA Périgueux
06.59.82.75.99
Galerie
Les modèles personnalisables éligibles pour ce terrain
60 m2 | 2 Chambres
Localisation du terrain
Coursac
Vous réalisez votre projet immobilier à proximité ou à Bergerac, ville emblématique de Dordogne et du Périgord. Votre maison, construite selon vos aspirations pour répondre à votre mode de vie grâce à l’expertise de Demeures Côte d’Argent bénéficie du dynamisme de sa localisation dans la deuxième ville la plus peuplée du département.
Nos services
Pour en savoir plus
Visiter nos maisons
Pour aller visiter cette réalisation, il vous suffit de prendre rendez-vous.
Contactez un conseiller
Nos conseillers sont à votre disposition pour répondre à toutes vos questions.