Maison en L
Modèle de maison
Maison en L
Modèle en L : configuration idéale pour séparer les espaces et créer une terrasse intime
Une architecture pensée pour votre confort
Le modèle en L se distingue par une organisation fluide et fonctionnelle des espaces. En séparant naturellement les zones jour et nuit, il garantit plus d’intimité pour chaque membre de la famille. Cette disposition favorise également une circulation agréable dans la maison, tout en créant des volumes ouverts et lumineux. C’est le choix idéal pour ceux qui recherchent un cadre de vie à la fois pratique et harmonieux.
Un extérieur protégé et convivial
Grâce à sa forme en L, ce type de maison permet de créer un espace extérieur abrité, parfait pour une terrasse ou un jardin intime. Protégé du vent et des regards, cet espace devient une véritable extension du salon, idéale pour les repas en plein air, les moments de détente ou les jeux d’enfants. C’est un atout majeur pour profiter pleinement de votre terrain, en toute saison.
Un modèle qui s’adapte à vos envies
Le plan en L s’adapte facilement à différents styles architecturaux et à une grande variété de terrains, y compris les parcelles en angle ou irrégulières. Il offre une grande liberté d’aménagement et peut intégrer un garage, une suite parentale ou encore un bureau selon vos besoins. Chez Demeures Côte d’Argent, nous vous proposons des modèles personnalisables, pensés pour répondre à vos envies de confort, de design et de fonctionnalité.
Le plan en L crée une ouverture naturelle sur le jardin, pour une vie tournée vers l’extérieur et baignée de lumière
Une maison au plan intérieur modulable offre une flexibilité exceptionnelle, permettant d’adapter les espaces selon les besoins changeants de ses occupants. Elle facilite les rénovations et les réaménagements sans nécessiter de travaux majeurs.
La configuration en L permet une organisation claire et structurée des volumes. C’est une solution idéale pour les familles qui recherchent à la fois convivialité et tranquillité.
Confort
Grâce à sa configuration astucieuse, la maison en L offre un cadre de vie fluide et apaisant. Elle permet de séparer naturellement les espaces de jour et de nuit, garantissant calme et intimité à chacun. Son agencement favorise également une excellente luminosité et crée un espace extérieur protégé, idéal pour se détendre en toute sérénité. Un choix parfait pour allier bien-être et fonctionnalité au quotidien.
Adaptabilité
Une adaptabilité qui fait la différence
Le modèle en L se distingue par sa grande adaptabilité, un atout essentiel pour répondre aux contraintes et aux envies de chaque famille. Grâce à sa forme angulaire, il s’intègre facilement sur des terrains de formes variées, y compris les parcelles en angle, étroites ou irrégulières. Cette souplesse d’implantation permet de valoriser au mieux chaque mètre carré, tout en respectant les règles d’urbanisme locales.
Une maison qui s’adapte à votre mode de vie
Au-delà du terrain, la maison en L s’adapte aussi à votre mode de vie. Elle permet de moduler les espaces selon vos besoins : suite parentale isolée, bureau au calme, garage accolé ou encore espace de vie traversant. Cette flexibilité architecturale en fait un modèle personnalisable et évolutif, capable d’accompagner les changements de votre quotidien, aujourd’hui comme demain.
Un choix intelligent et durable
Choisir un modèle en L, c’est opter pour une maison intelligente et durable, capable de s’adapter à son environnement et à ses occupants. Chez Demeures Côte d’Argent, nous concevons chaque projet pour qu’il réponde à vos attentes en matière de confort, d’esthétique et de performance énergétique, tout en tirant le meilleur parti de votre terrain.
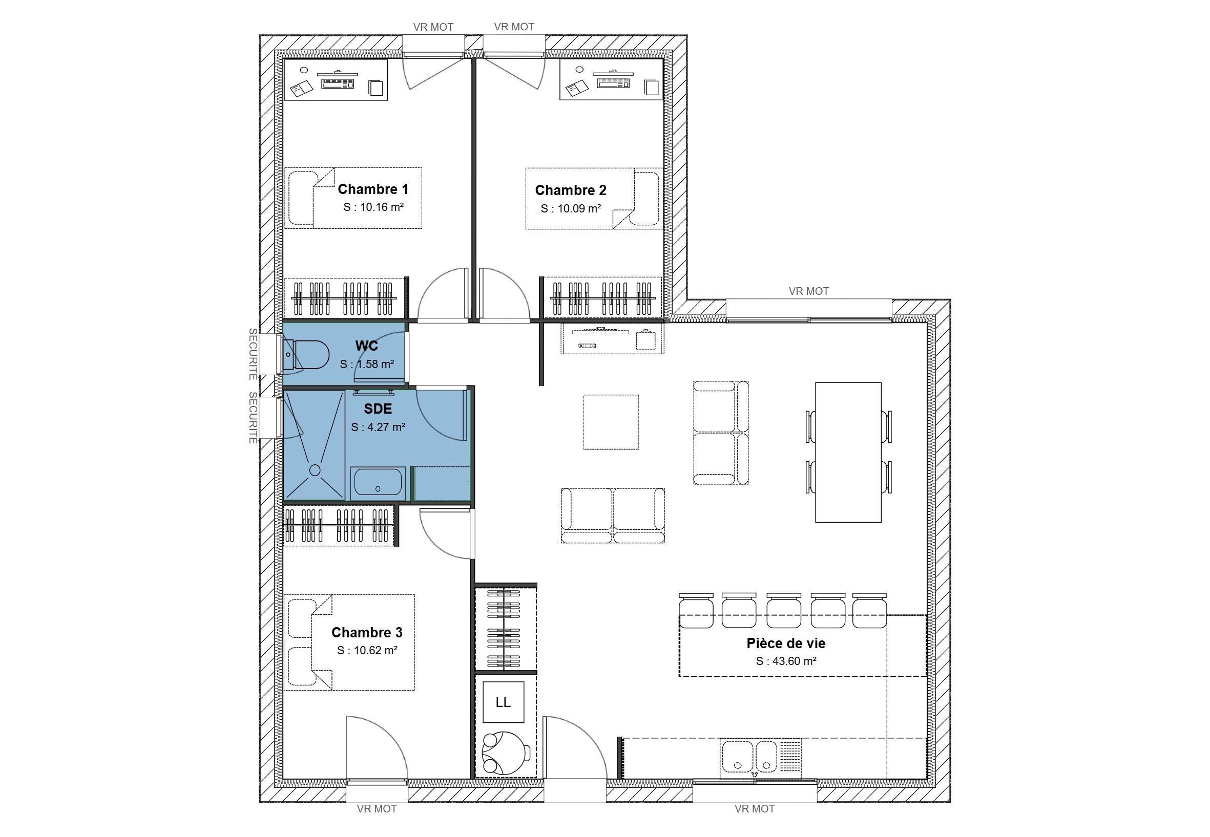
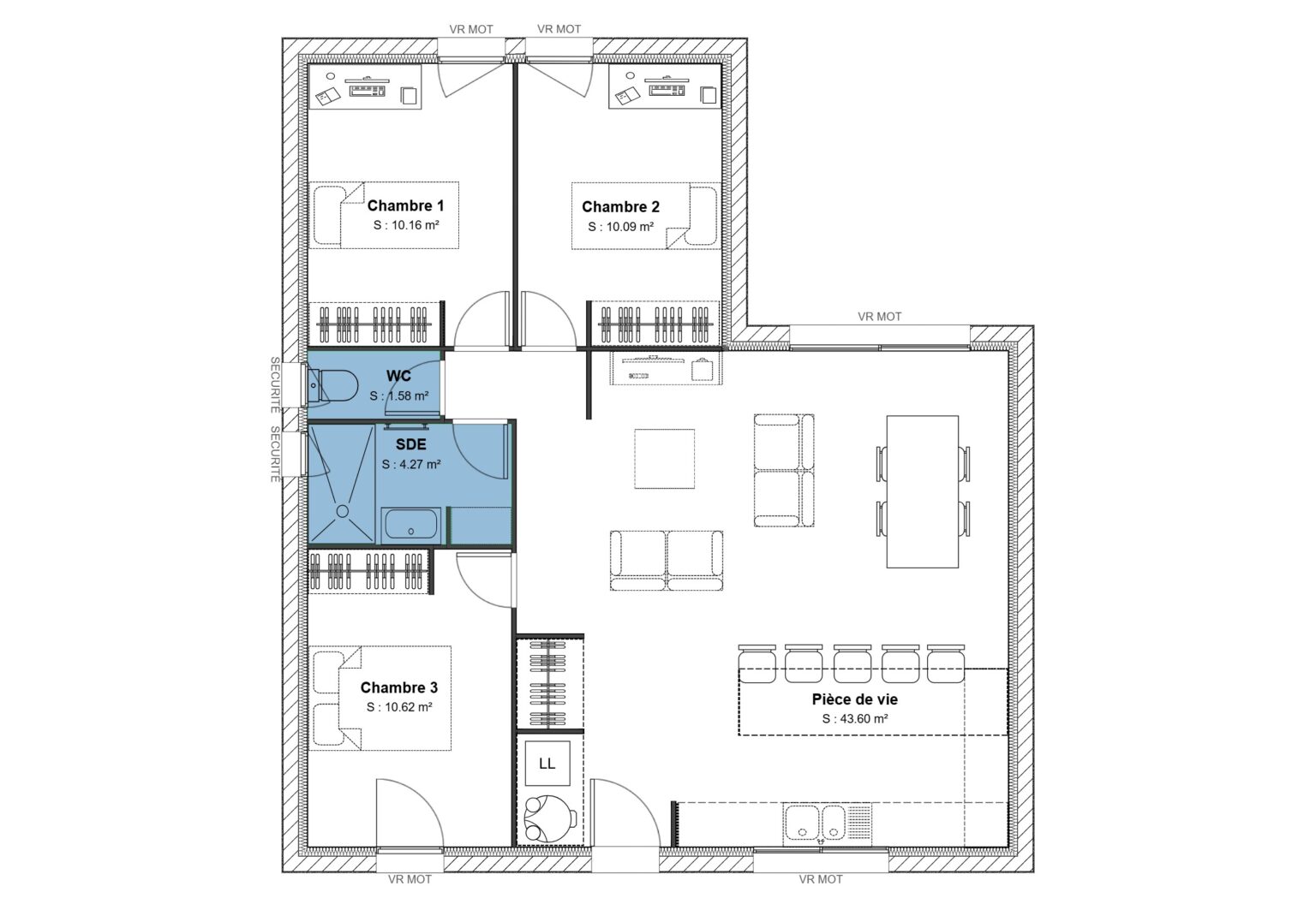
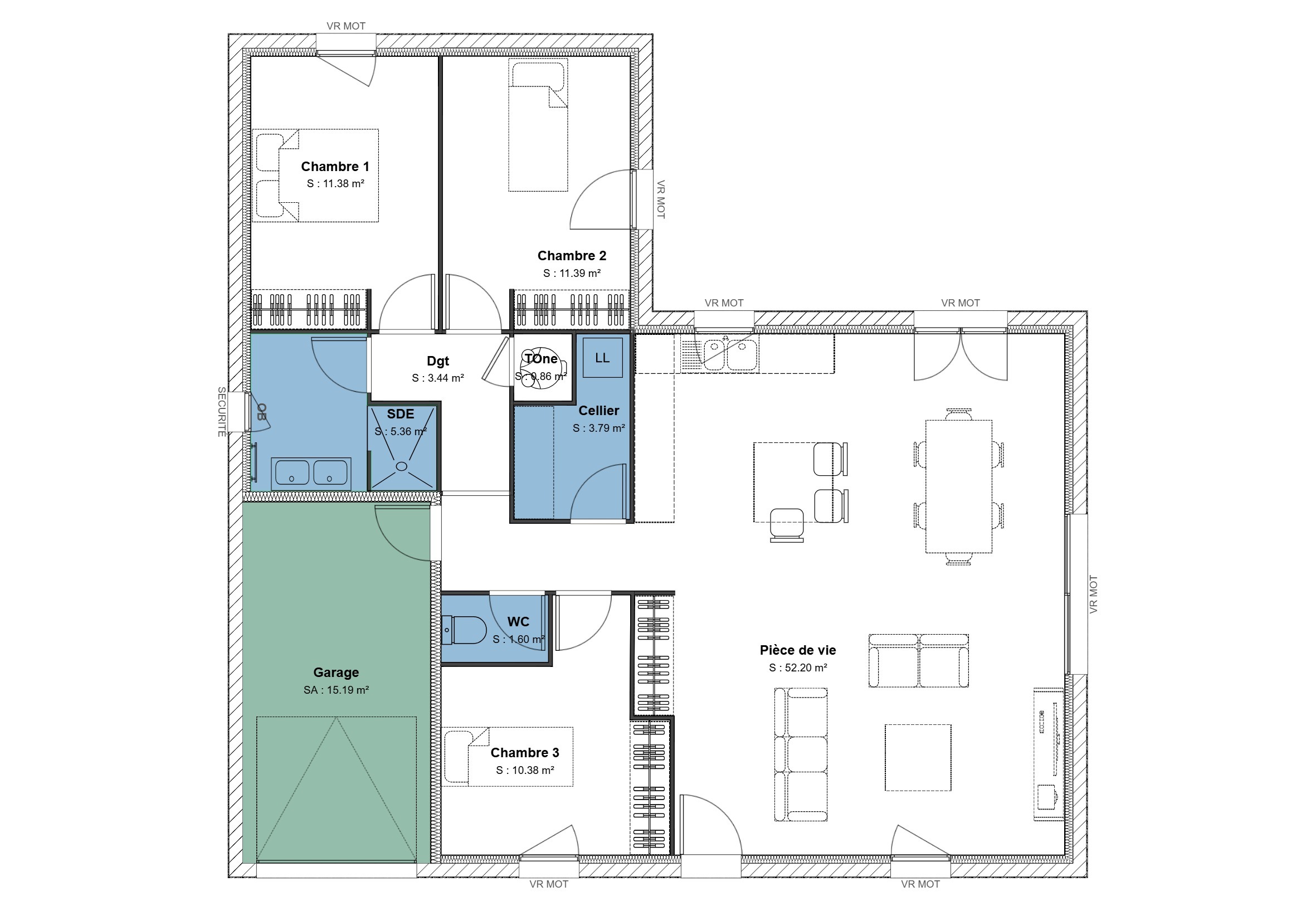
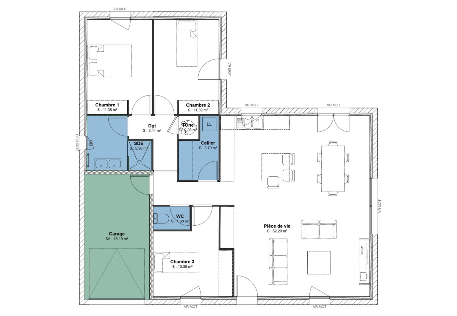
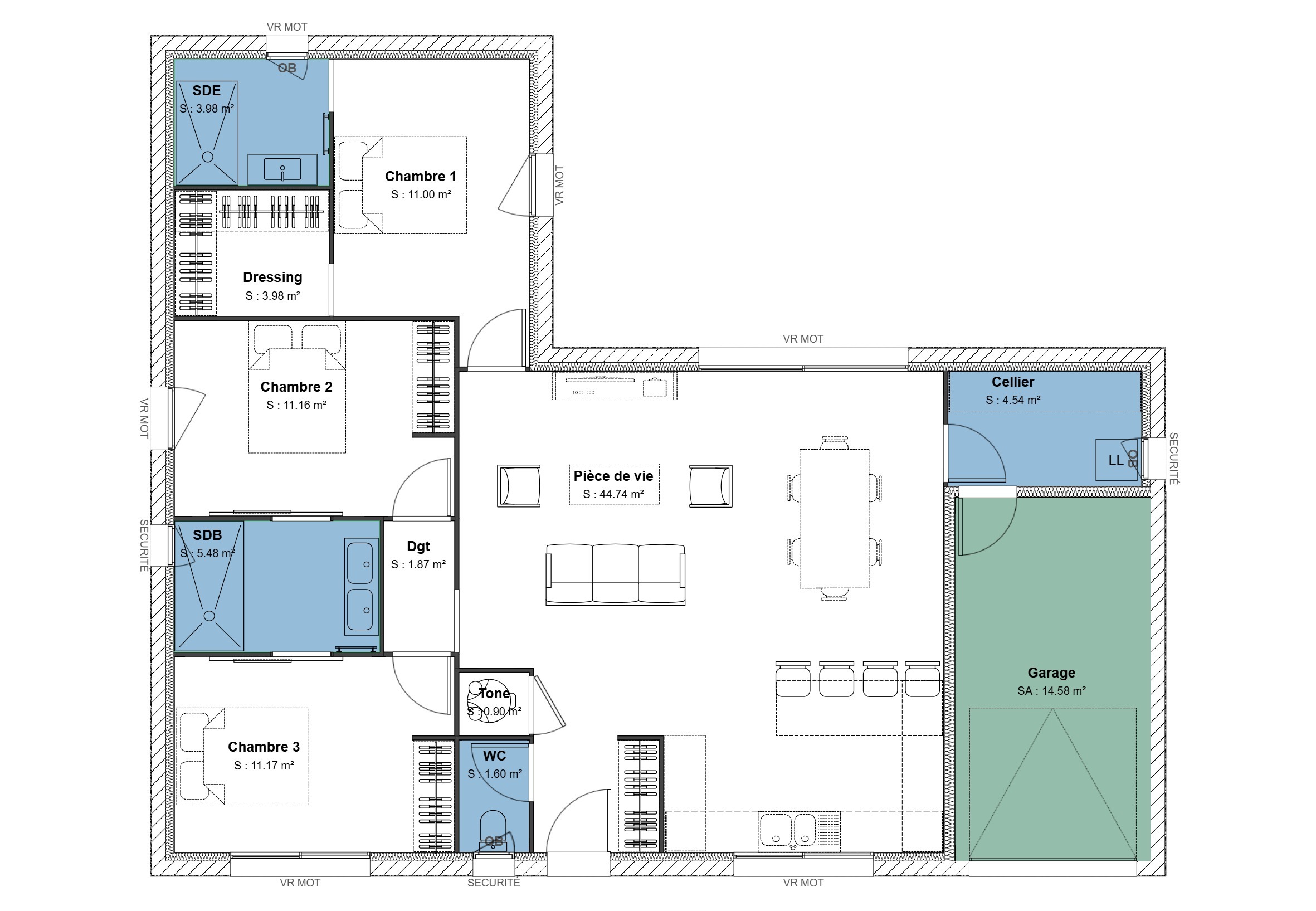
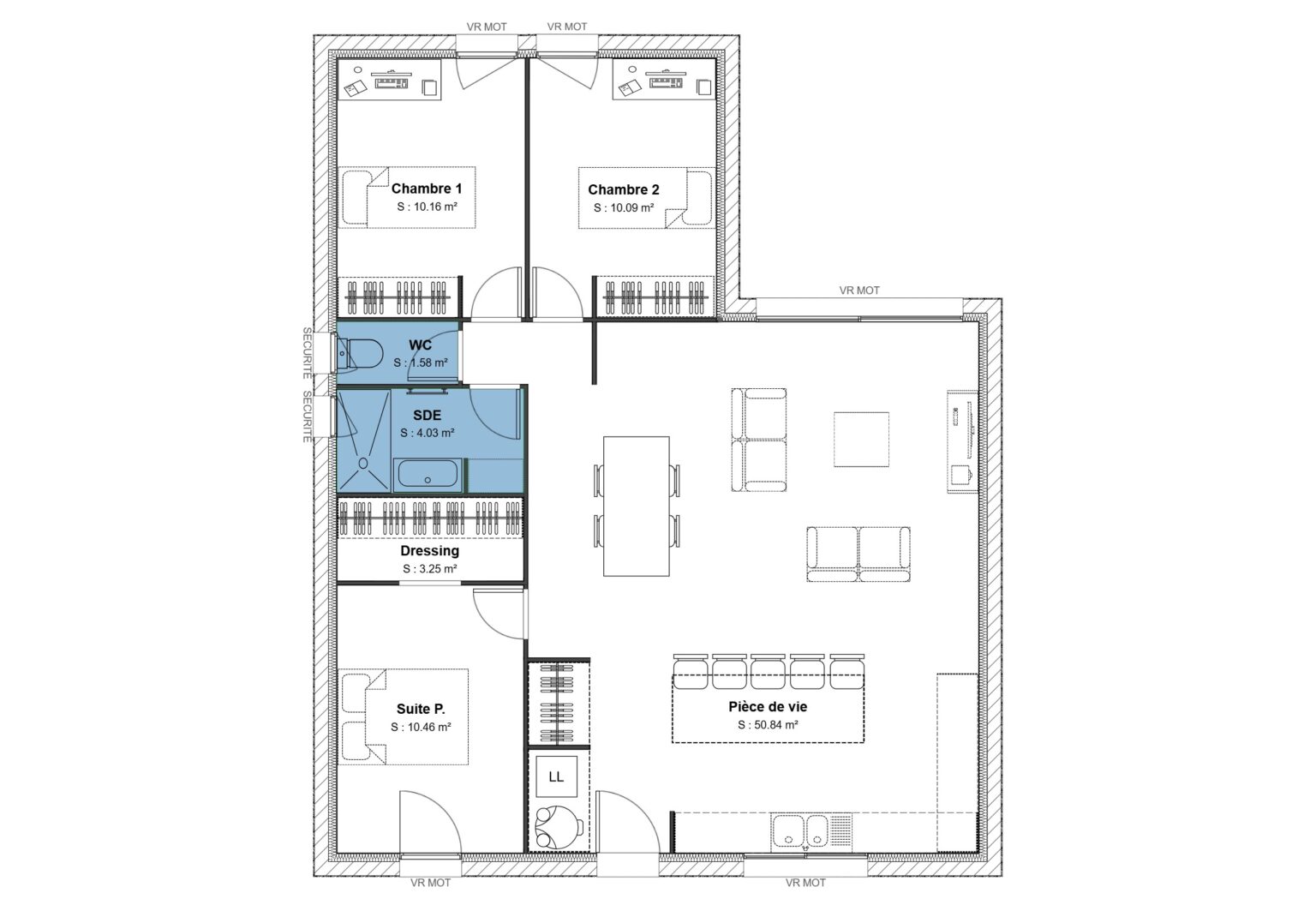
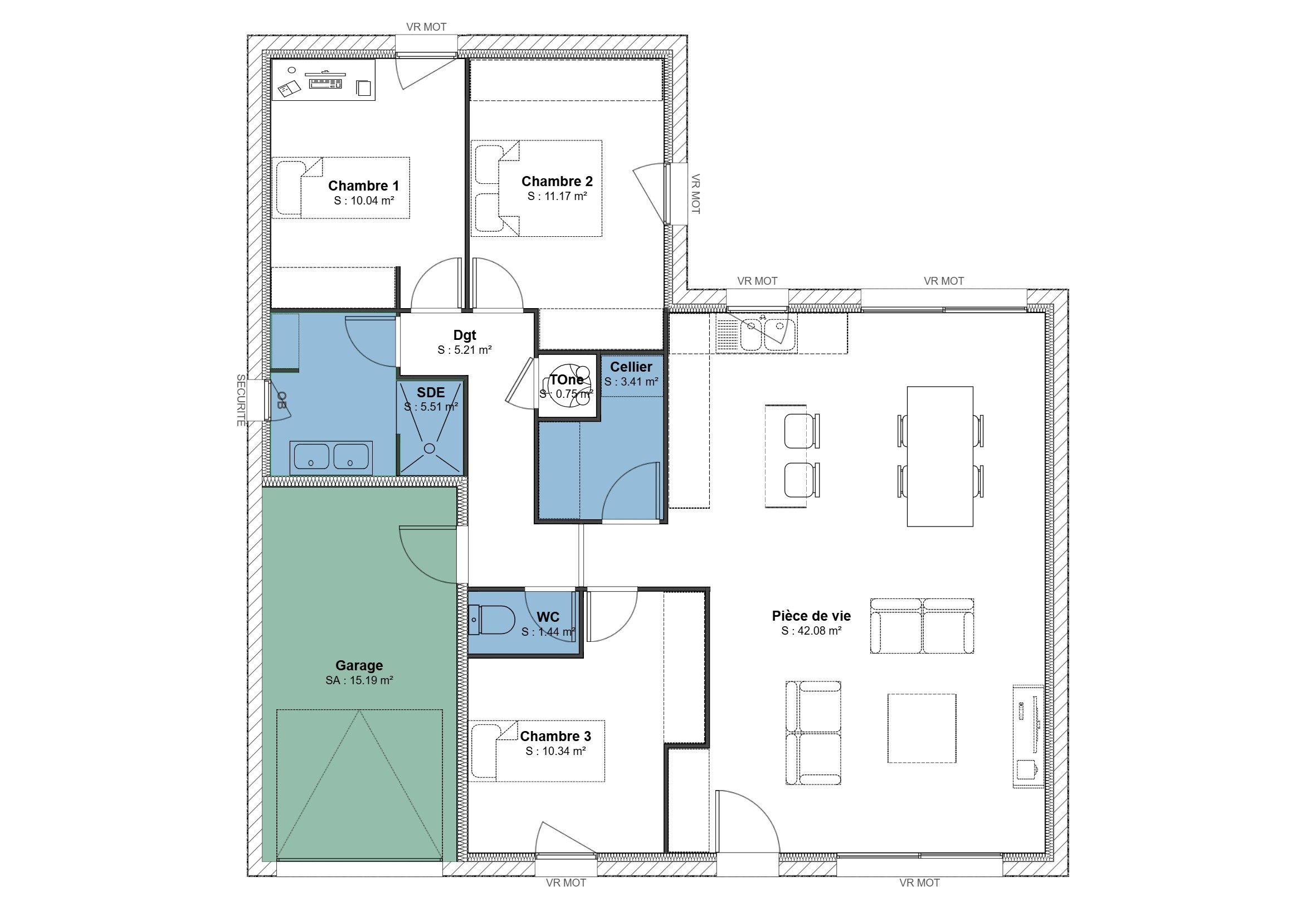
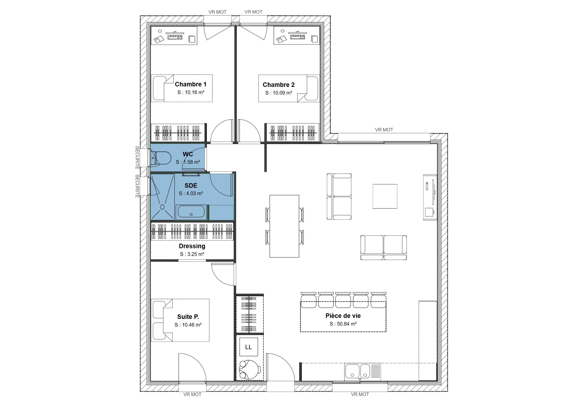
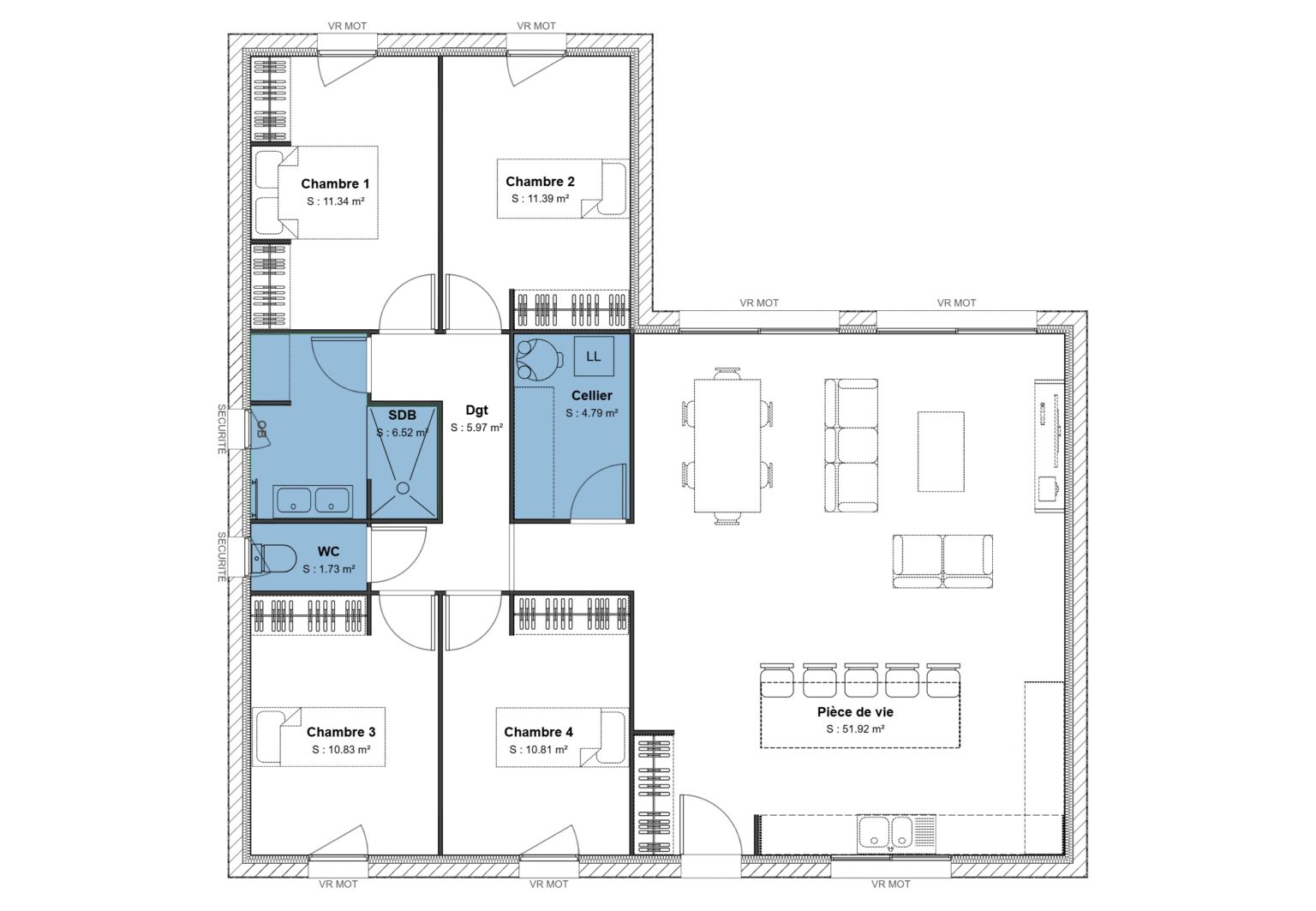
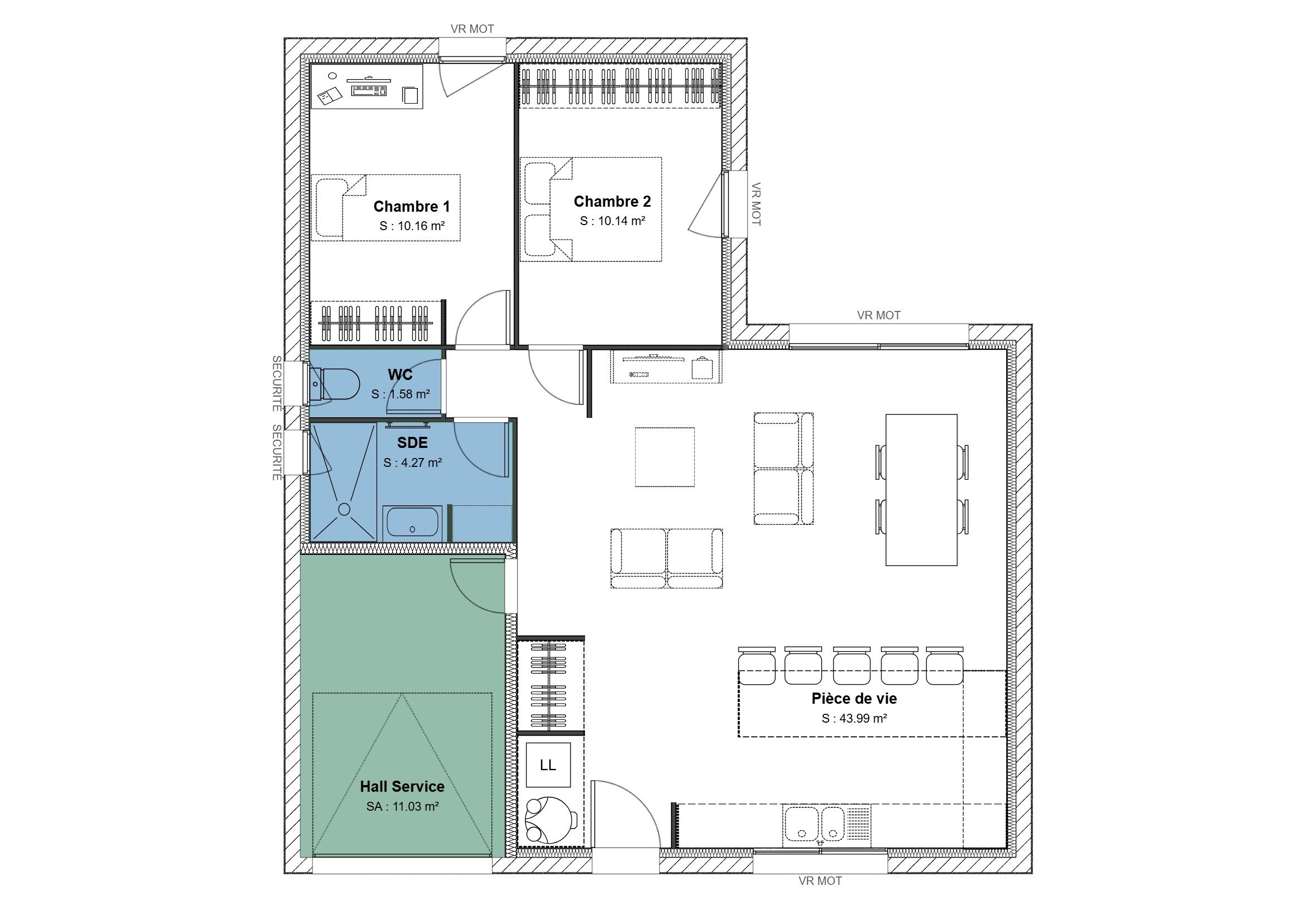
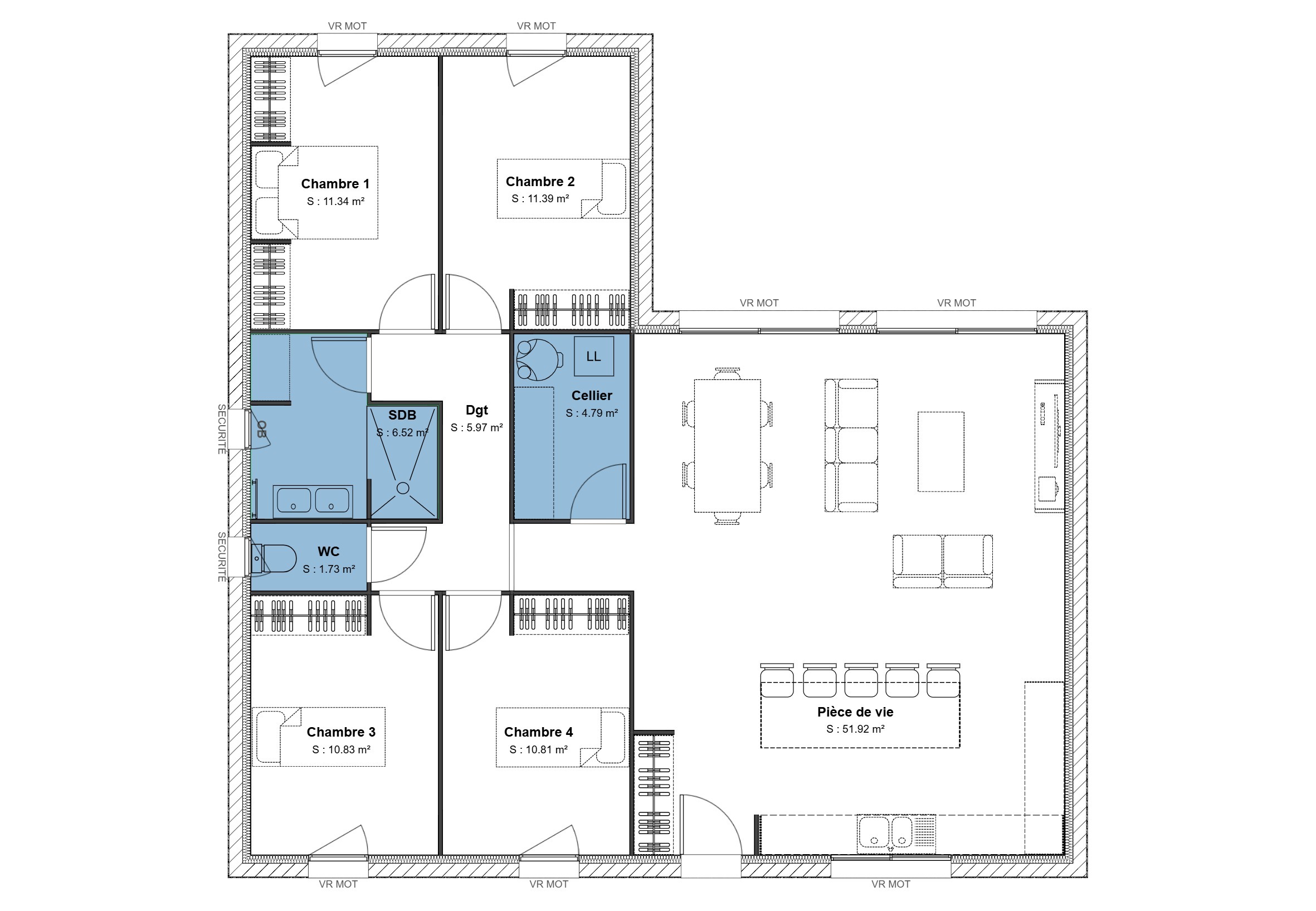
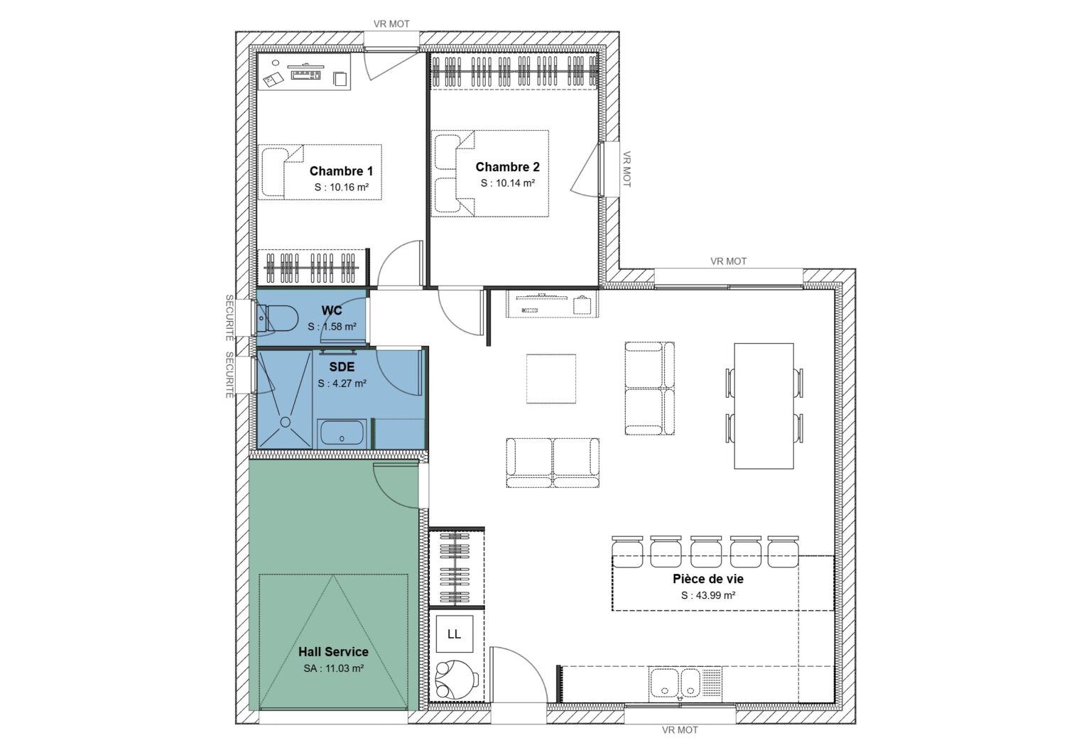
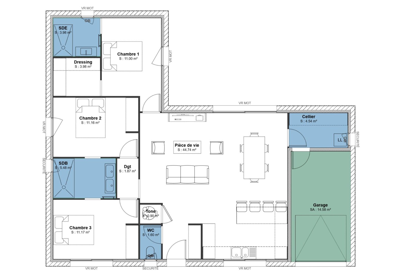
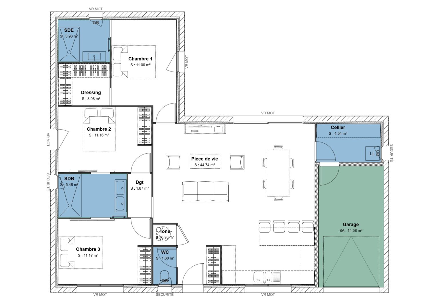
Plans de notre modèle de maison
| Surface habitable | Prix TTC | Nb de chambres | Nb suites parentales | Garage | PMR | Aperçu | |
|---|---|---|---|---|---|---|---|
|
Surface habitable
70
|
Prix TTC
134 427 €
|
Nb de chambres
2
|
Nb suites parentales
0
|
Garage
Non
|
PMR
Non
|
Télécharger le plan |
| Surface habitable | Prix TTC | Nb de chambres | Nb suites parentales | Garage | PMR | Aperçu | |
|---|---|---|---|---|---|---|---|
|
Surface habitable
80
|
Prix TTC
136 620 €
|
Nb de chambres
3
|
Nb suites parentales
0
|
Garage
Non
|
PMR
Non
|
Télécharger le plan |
| Surface habitable | Prix TTC | Nb de chambres | Nb suites parentales | Garage | PMR | Aperçu | |
|---|---|---|---|---|---|---|---|
|
Surface habitable
90
|
Prix TTC
144 745 €
|
Nb de chambres
2
|
Nb suites parentales
1
|
Garage
Non
|
PMR
Non
|
Télécharger le plan | |
|
Surface habitable
90
|
Prix TTC
157 337 €
|
Nb de chambres
3
|
Nb suites parentales
0
|
Garage
Oui
|
PMR
Non
|
Télécharger le plan |
| Surface habitable | Prix TTC | Nb de chambres | Nb suites parentales | Garage | PMR | Aperçu | |
|---|---|---|---|---|---|---|---|
|
Surface habitable
100
|
Prix TTC
168 173 €
|
Nb de chambres
3
|
Nb suites parentales
0
|
Garage
Oui
|
PMR
Non
|
Télécharger le plan | |
|
Surface habitable
100
|
Prix TTC
175 162 €
|
Nb de chambres
2
|
Nb suites parentales
1
|
Garage
Oui
|
PMR
Non
|
Télécharger le plan |
| Surface habitable | Prix TTC | Nb de chambres | Nb suites parentales | Garage | PMR | Aperçu | |
|---|---|---|---|---|---|---|---|
|
Surface habitable
115
|
Prix TTC
173 420
|
Nb de chambres
4
|
Nb suites parentales
0
|
Garage
Non
|
PMR
Non
|
Télécharger le plan |
Pour en savoir plus
Visiter nos maisons
Pour aller visiter cette réalisation, il vous suffit de prendre rendez-vous.
Prendre rendez-vousContactez un conseiller
Nos conseillers sont à votre disposition pour répondre à toutes vos questions.
Être rappelé










