POP ! 60
Modèle de maison
POP ! 60
Modèle de maison POP ! 60 :
une maison confortable et pas chère
Cette maison de 60 m2 est à la fois confortable et pas chère. Proposée à moins de 99 000 €, elle possède toutes les caractéristiques qui font de la ligne POP ! des maisons de qualité à prix très abordable :
- Optimisation des plans
- Qualité des matériaux et équipements performants
- Rapidité de construction
- Maîtrise des coûts
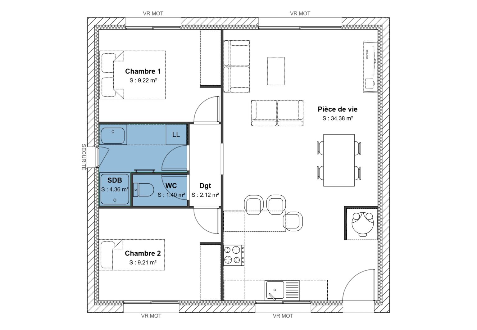
Cette maison pas chère de 60 m2 possède :
- Une pièce de vie de presque 35 m2, avec cuisine ouverte sur séjour
- Deux chambres
- Une salle d’eau + un WC séparé
- Les dégagements ont été réduits au maximum pour une utilisation optimale de tous les surfaces.
Vous avez besoin de plus d’espace ? Pas de problème ! La ligne POP ! vous offre un large choix de maisons pas chères, modulables et personnalisables, allant de 60 m2 à 100 m2.
Vous avez besoin d’une chambre supplémentaire, d’un garage ou d’une suite parentale ? Vous souhaitez modifier l’agencement intérieur ? Les modèles de maisons POP ! sauront répondre à vos besoins en termes de qualité, de confort et de performances énergétiques.
Un plan optimisé pour limiter au maximum les m2 inutilisés.
La ligne POP !, ce sont des maisons dont les côtes des plans ont été optimisées pour une meilleure maîtrise des coûts et des délais de construction.
POP! ce sont des maisons de qualité pas chères, accessibles aux petits budgets.
Petit prix
Ce sont des plans optimisés et une parfaite maîtrise des coûts de construction qui nous permettent de vous proposer une maison pas chère, la maison POP ! 60. Ce modèle à prix imbattable ne fait aucun compromis sur la qualité des matériaux ou la performance des équipements.
Primo accédant
Le modèle de maison POP ! 60 est idéal pour ceux qui souhaitent faire construire pour la première fois ou réaliser un investissement locatif. Faire construire cette maison de 60 m2, c’est disposer d’une pièce de vie d’environ 35 m2, de deux chambres, d’une salle d’eau, d’un WC séparé.
Plans de notre modèle de maison
| Surface habitable | Prix TTC | Nb de chambres | Nb suites parentales | Garage | PMR | Aperçu | |
|---|---|---|---|---|---|---|---|
|
Surface habitable
60
|
Prix TTC
95 910 €
|
Nb de chambres
2
|
Nb suites parentales
0
|
Garage
Non
|
PMR
Non
|
Télécharger le plan |
Pour en savoir plus
Visiter nos maisons
Pour aller visiter cette réalisation, il vous suffit de prendre rendez-vous.
Prendre rendez-vousContactez un conseiller
Nos conseillers sont à votre disposition pour répondre à toutes vos questions.
Être rappelé



