POP ! 70
Modèle de maison
POP ! 70
Modèle de maison POP ! 70 :
une maison certifiée NF-Habit à prix imbattable
La ligne de maisons POP ! a été conçue pour proposer des maisons de qualité au meilleur prix. Pour cela, nous avons optimisé les plans du modèle POP !, permettant une meilleure maîtrise des coûts de construction, sans sacrifier la qualité. Pop! ne fait aucun compromis sur les équipements, le confort et les performances énergétiques. Les maisons POP ! sont certifiées NF-Habitat, ce qui vous assurera d’un excellent confort thermique et d’une efficacité énergétique remarquable. Dans le cadre de cette certification, une attention particulière est également portée à l’isolation acoustique, la luminosité naturelle, et la fonctionnalité des espaces.
Avec une surface habitable allant de 60 m² à 100 m², la ligne POP ! vous offre un large choix de maisons modulables et personnalisables.
Créez la maison POP ! qui vous ressemble : ajoutez un garage, un hall service, modifiez l’organisation des chambres, choisissez les menuiseries pour votre séjour. La ligne Pop! saura répondre à vos besoins en termes de prix, de confort et de performances énergétiques.
Une surface et un agencement modulables et personnalisables sur mesure
Des maisons conçues pour une construction rapide
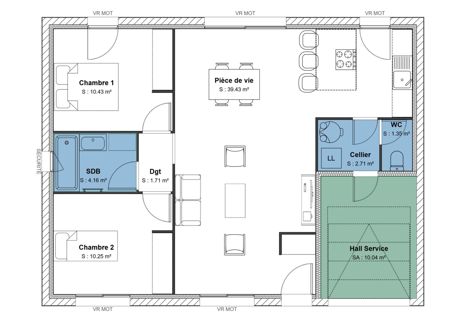
POP ! 70 est disponible dans une version adaptée aux personnes à mobilité réduite.
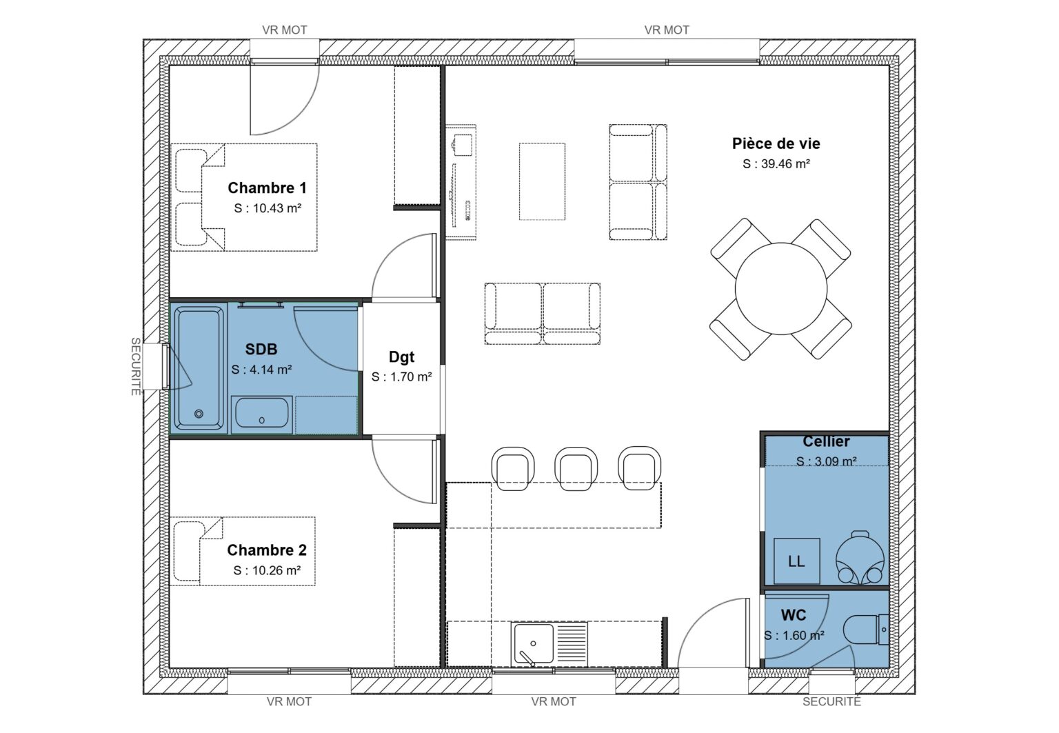
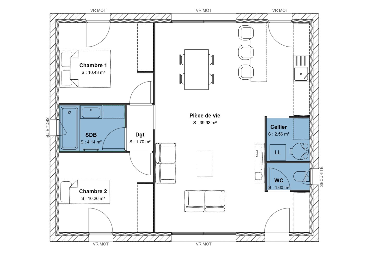
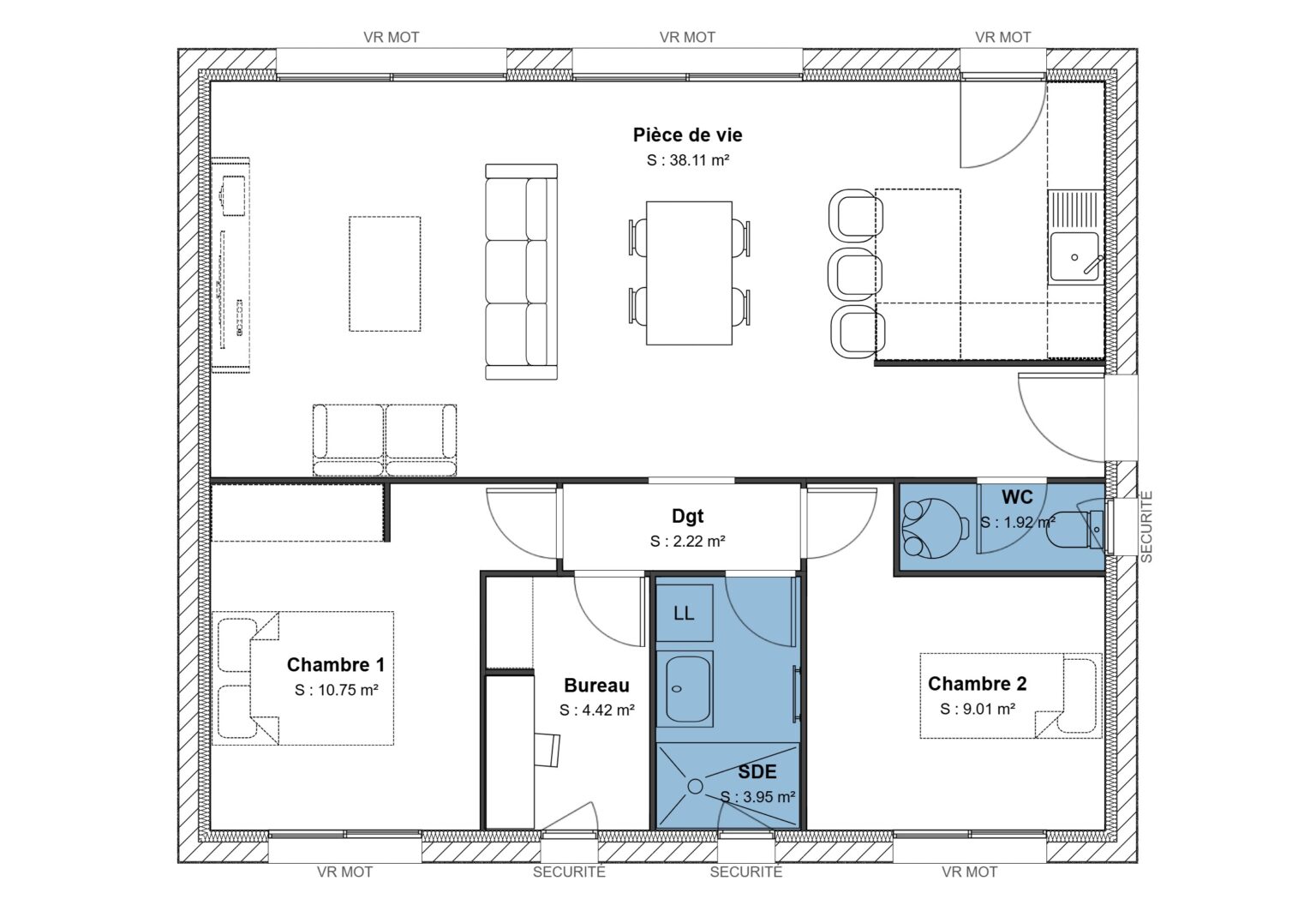
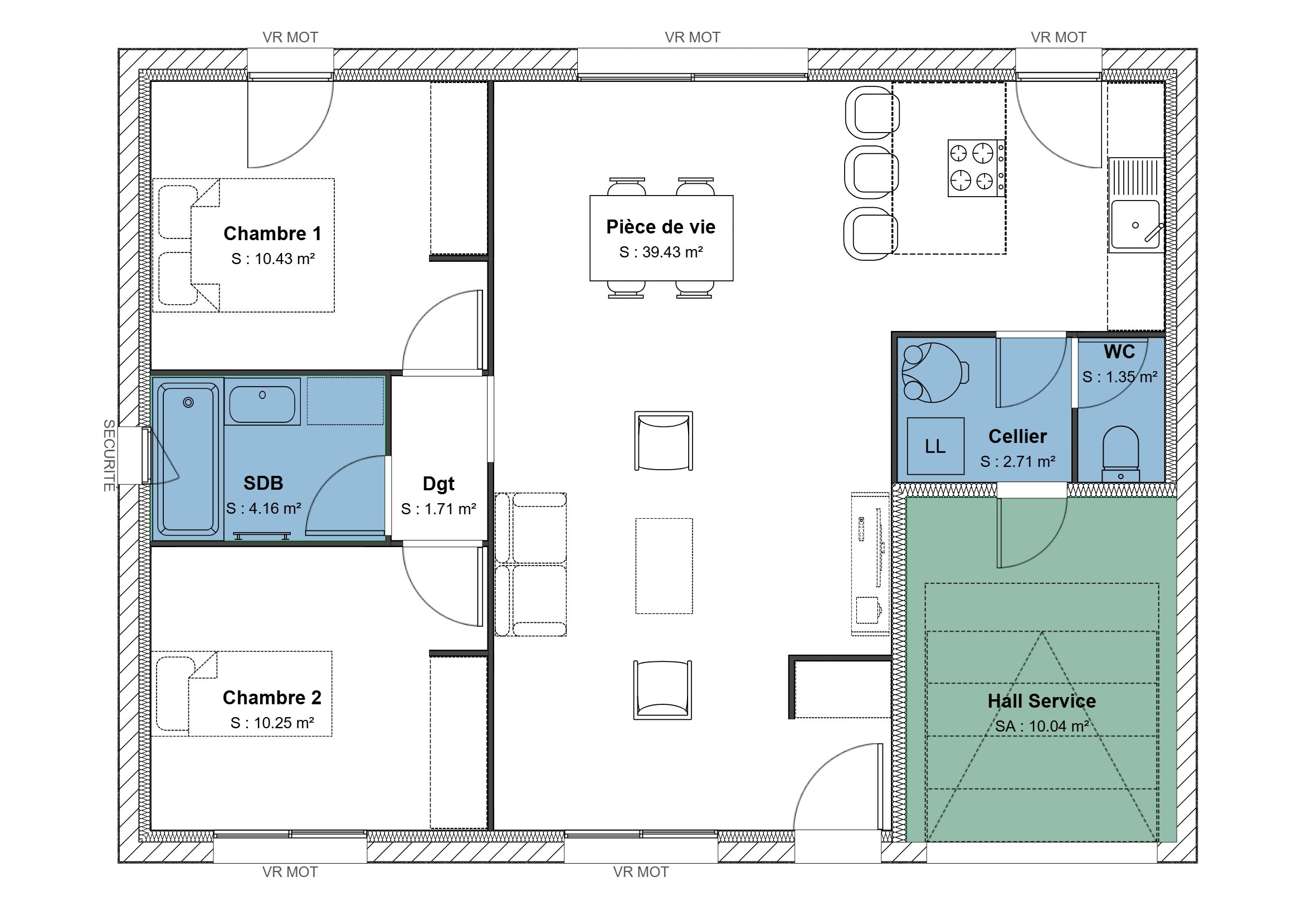
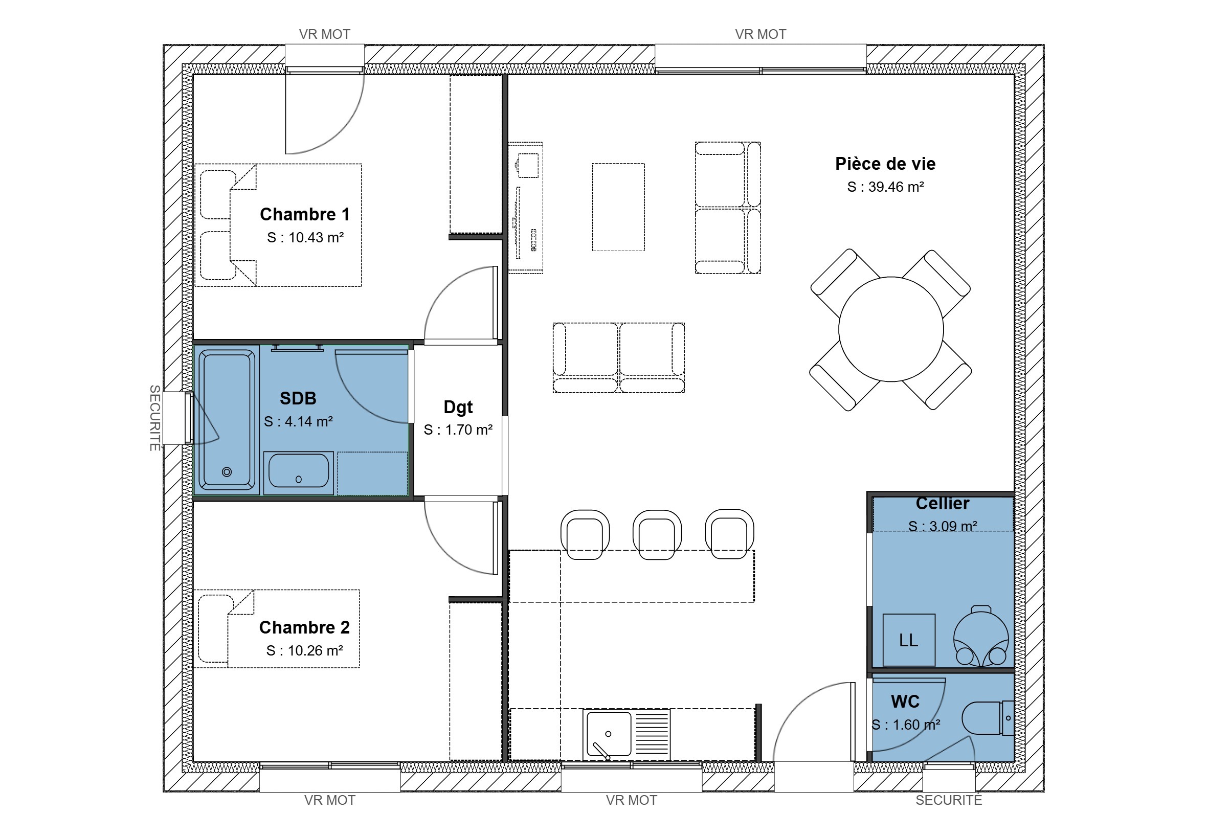
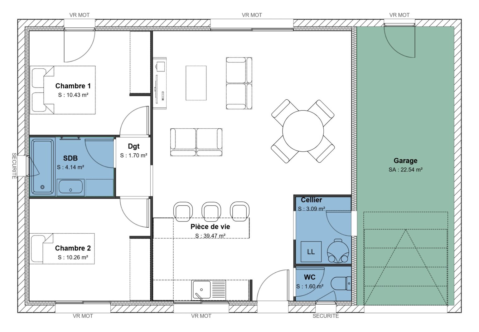
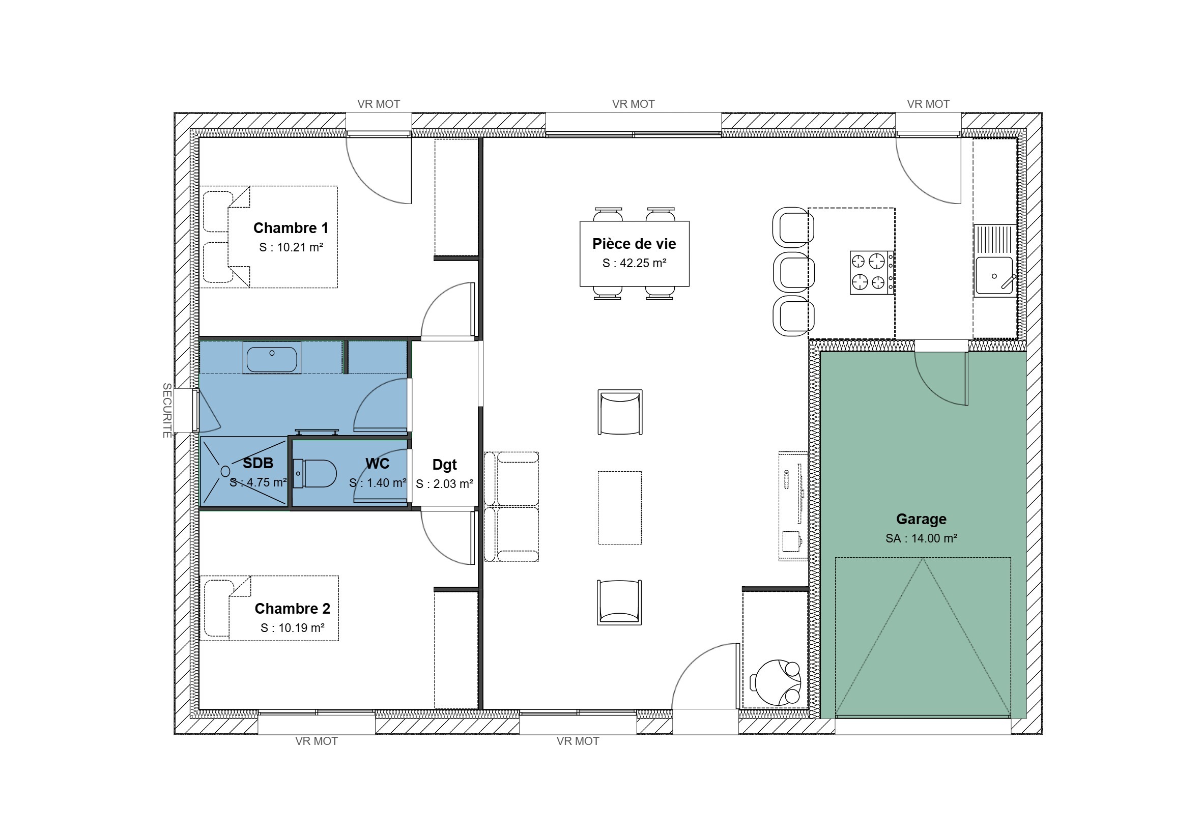
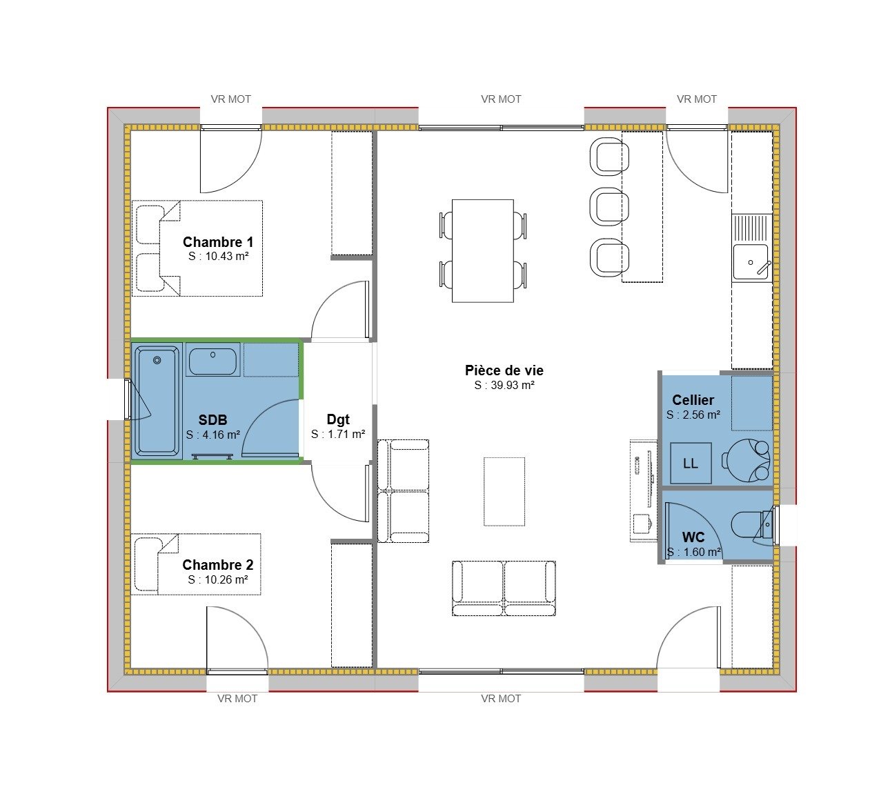
Plans de notre modèle de maison
| Surface habitable | Prix TTC | Nb de chambres | Nb suites parentales | Garage | PMR | Aperçu | |
|---|---|---|---|---|---|---|---|
|
Surface habitable
70
|
Prix TTC
103 580 €
|
Nb de chambres
2
|
Nb suites parentales
0
|
Garage
Non
|
PMR
Option
|
Télécharger le plan | |
|
Surface habitable
70
|
Prix TTC
105 050 €
|
Nb de chambres
2
|
Nb suites parentales
0
|
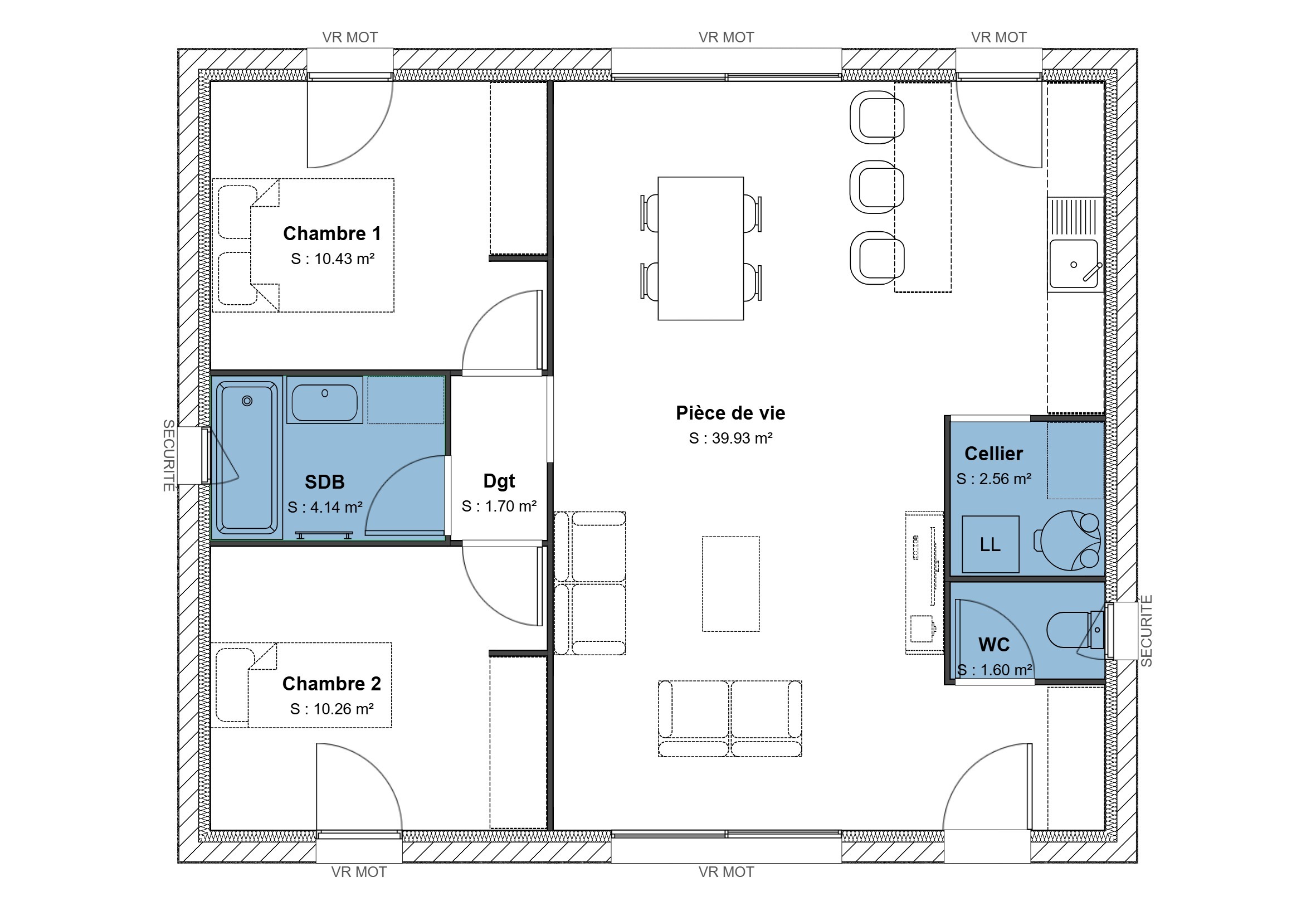
Garage
Non
|
PMR
Option
|
Télécharger le plan | |
|
Surface habitable
70
|
Prix TTC
106 270 €
|
Nb de chambres
2
|
Nb suites parentales
0
|
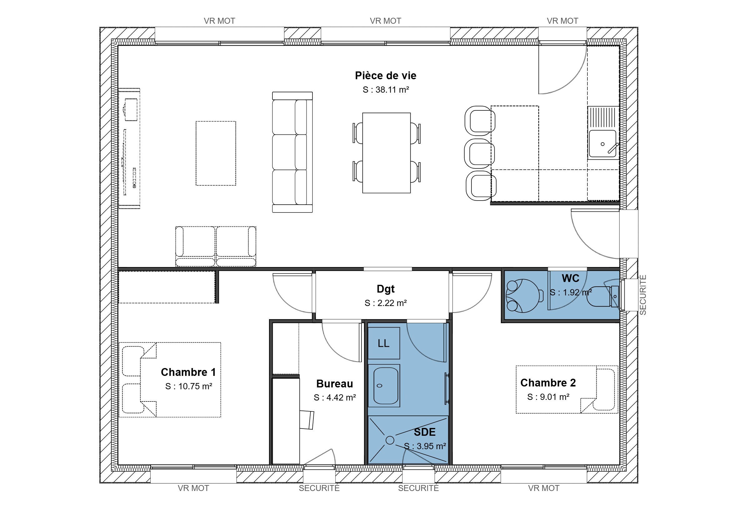
Garage
Non
|
PMR
Non
|
Télécharger le plan | |
|
Surface habitable
70
|
Prix TTC
111 420 €
|
Nb de chambres
2
|
Nb suites parentales
0
|
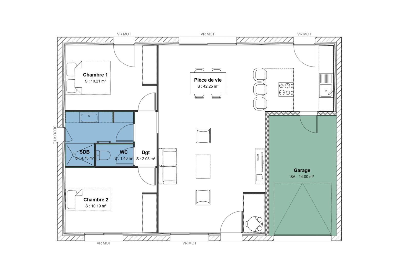
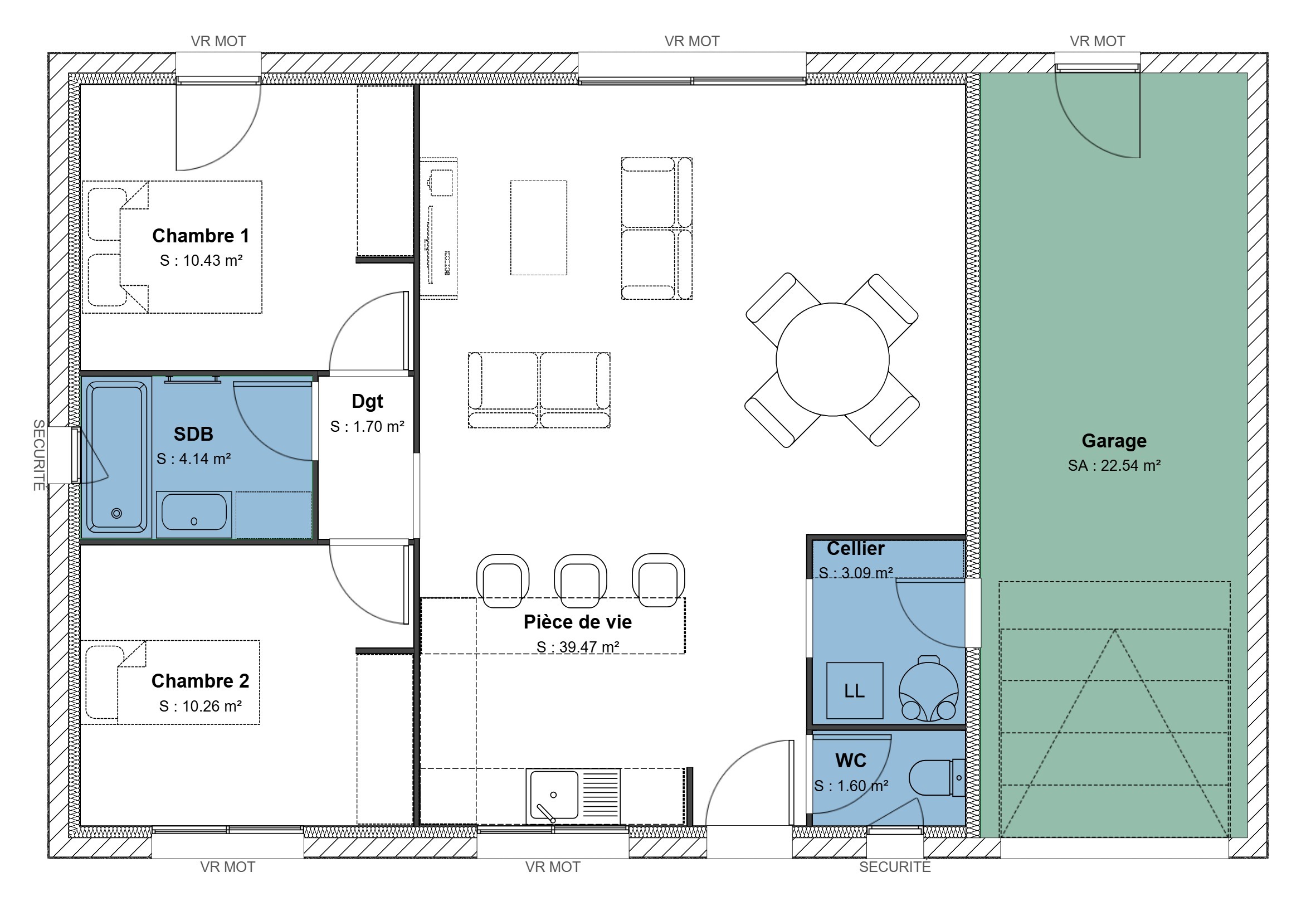
Garage
Oui
|
PMR
Non
|
Télécharger le plan | |
|
Surface habitable
70
|
Prix TTC
113 800 €
|
Nb de chambres
2
|
Nb suites parentales
0
|
Garage
Oui
|
PMR
Non
|
Télécharger le plan | |
|
Surface habitable
70
|
Prix TTC
114 510 €
|
Nb de chambres
2
|
Nb suites parentales
0
|
Garage
Oui
|
PMR
Option
|
Télécharger le plan |
Architecture optimisée
Dans votre maison POP ! 70, les mètres carrés sont optimisés. Son concept vous laisse la possibilité d’aménager l’espace intérieur selon vos besoins. Sous votre crayon, votre intérieur prend forme. Vous donnez une touche design à votre séjour en créant une séparation avec votre cuisine grâce à une verrière. Vous pouvez également aménager un espace de travail à domicile.
Idéal 1er achat
Alliant matériaux de haute qualité et prix compétitif, cette maison est idéale pour ceux qui souhaitent devenir propriétaire pour la première fois.
Pour en savoir plus
Visiter nos maisons
Pour aller visiter cette réalisation, il vous suffit de prendre rendez-vous.
Prendre rendez-vousContactez un conseiller
Nos conseillers sont à votre disposition pour répondre à toutes vos questions.
Être rappelé

















