POP ! 80
Modèle de maison
POP ! 80
Modèle de maison POP ! 80 : une maison de qualité à petit prix
Les maisons POP ! ont été conçues dans les moindres détails, afin de proposer au plus grand nombre des maisons de qualité à un prix imbattable. Pour ce faire, le bureau d’Études Demeures Côte d’Argent a imaginé des plans aux côtes optimisées permettant de maîtriser au mieux les coûts et les délais de construction.
Vous avez un budget limité et vous recherchez une maison pas chère, mais de qualité ? POP ! est la maison qu’il vous faut, qu’il s’agisse de votre première maison, d’une nouvelle construction ou d’un investissement locatif.
Ce modèle de maison ne fait aucun compromis sur la qualité des matériaux de construction ni sur les équipements intérieurs. Fonctionnelle, confortable, proposant différentes configurations de plans, maison POP ! est certifiée NF-Habitat. Vous avez l’assurance de bénéficier d’un confort thermique optimal et d’une excellente isolation acoustique. Dotée d’équipements énergétiques performants, votre maison vous permettra de réaliser dans le temps d’importantes économies sur vos factures d’énergie.
Le modèle de maison POP ! vous offre la possibilité de devenir propriétaire d’une maison de qualité à petit prix.
Avec des surfaces habitables allant de 70 m2 à 100 m2, le modèle POP ! propose une multitude de plans intérieurs pouvant être personnalisés selon vos besoins, votre mode de vie et la composition de votre famille. Pour votre projet de construction d’une maison POP !, contactez vite l’agence DCA la plus proche.
Les maisons POP !, des maisons certifiées NF-Habitat accessibles aux petits budgets.
Une multitude de plans proposant différentes possibilités d’agencement intérieur.
Des maisons pensées pour une construction rapide.
Petit budget
Le modèle de maison POP ! et ses plans optimisés ont été développés pour favoriser l’accession à la propriété des foyers les plus modestes. Tout a été pensé pour proposer une maison pas chère, adaptée aux petits budgets, sans sacrifier la qualité des matériaux ou la performance des équipements.
NF-Habitat
En choisissant POP ! 80, une maison certifiée NF-Habitat, vous optez pour une habitation de qualité, durable et confortable. Celle-ci vous procurera de multiples avantages en termes de confort de vie, d’efficacité énergétique, de sécurité et de respect de l’environnement
Confort de vie : Ces maisons sont conçues pour offrir un excellent confort thermique et acoustique, une ventilation efficace, et l’utilisation de matériaux sains pour un environnement intérieur agréable.
Efficacité énergétique : Les maisons certifiées NF-Habitat sont conçues pour être économes en énergie, ce qui permet de réduire les coûts d’utilisation et d’entretien, notamment les factures d’électricité et de chauffage.
Sécurité : Elles respectent des normes strictes en matière de sécurité, incluant la sécurité incendie et la qualité des installations électriques et de plomberie.
Respect de l’environnement : La construction de ces maisons suit des pratiques durables et utilise des matériaux écologiques, visant à minimiser l’empreinte carbone et à préserver les ressources naturelles.
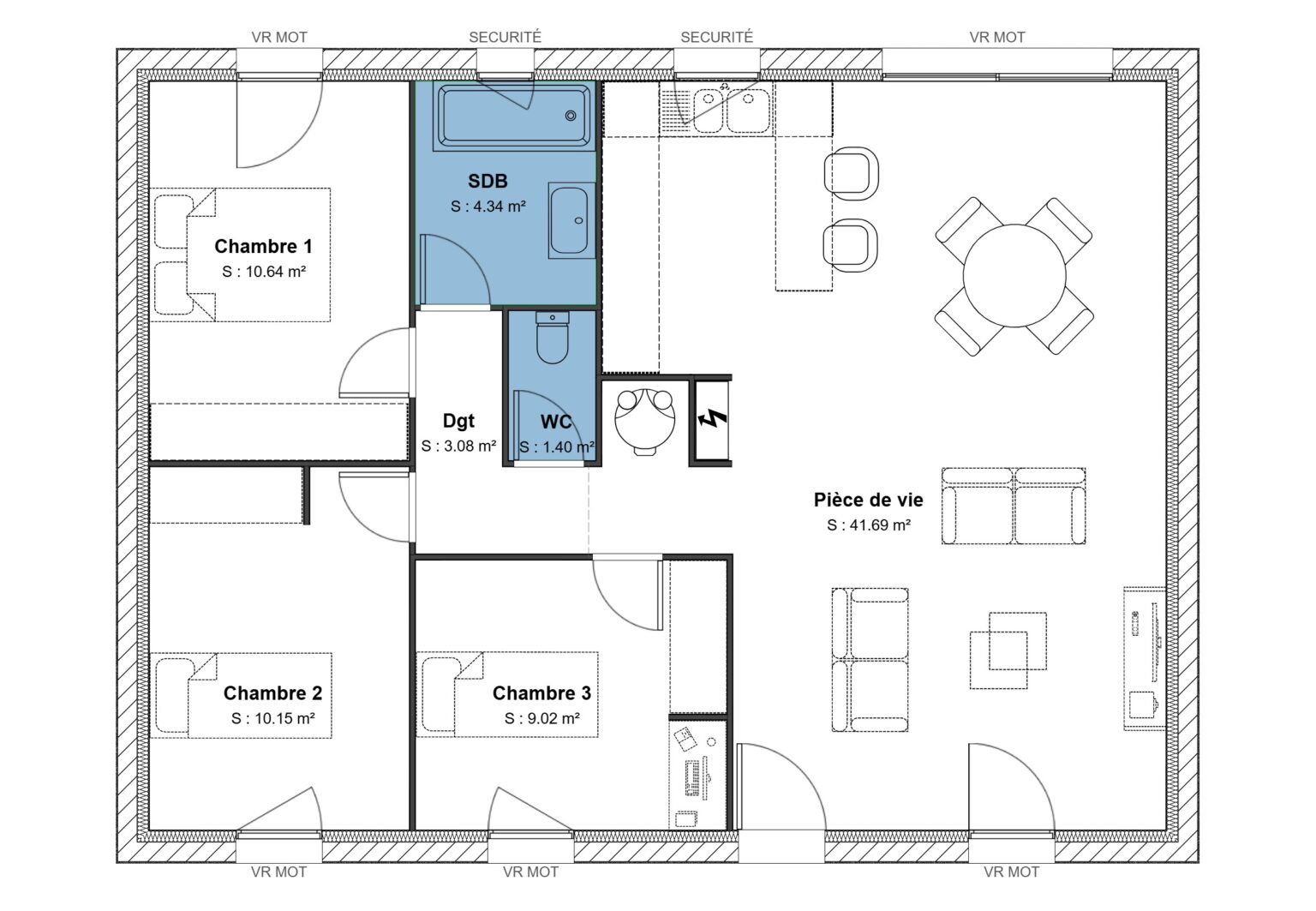
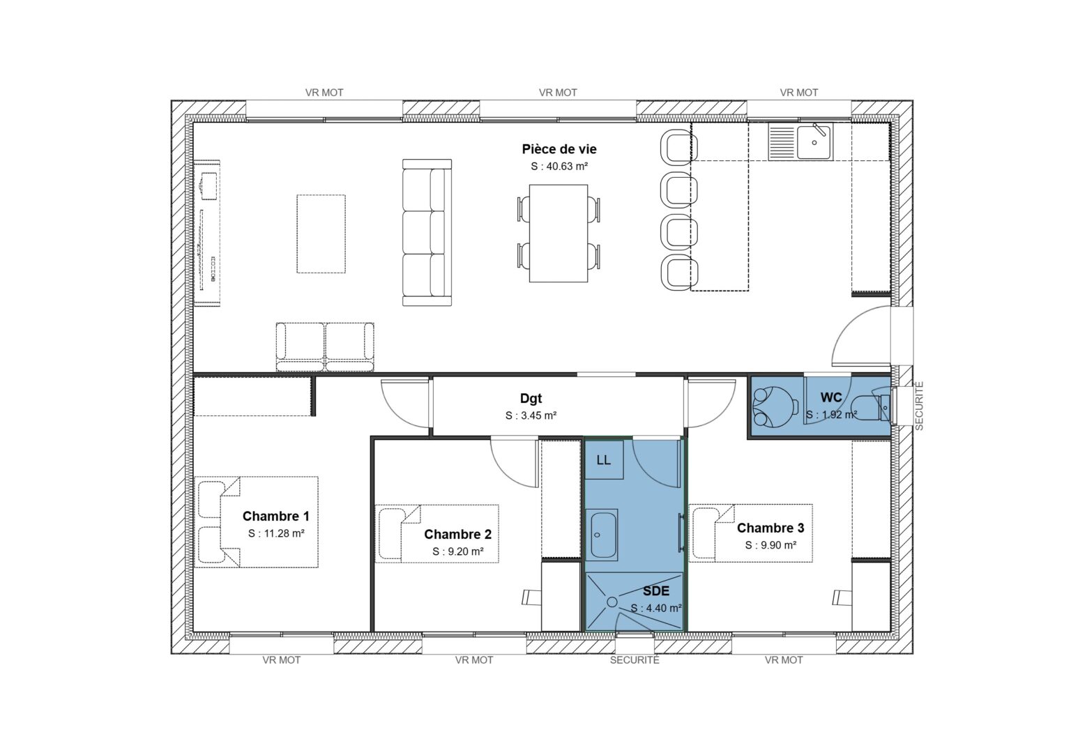
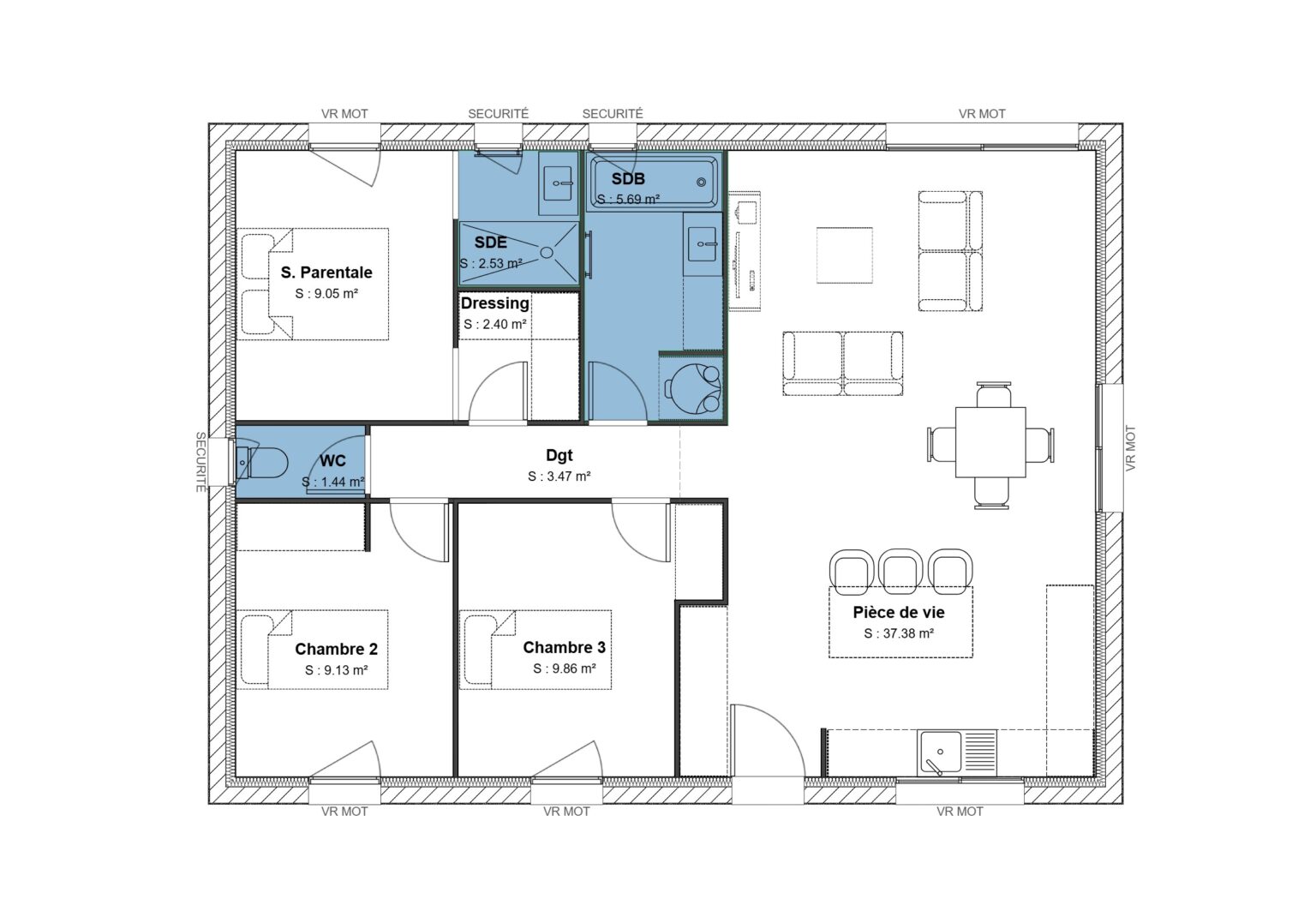
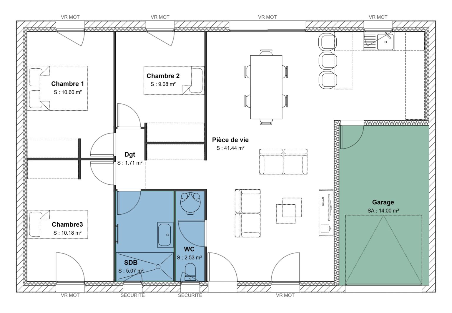
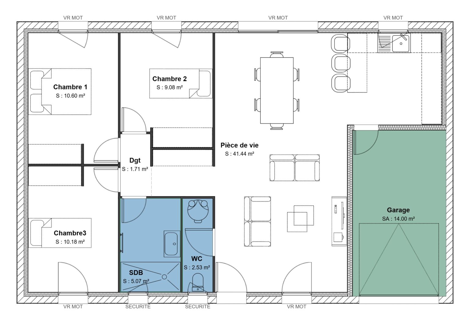
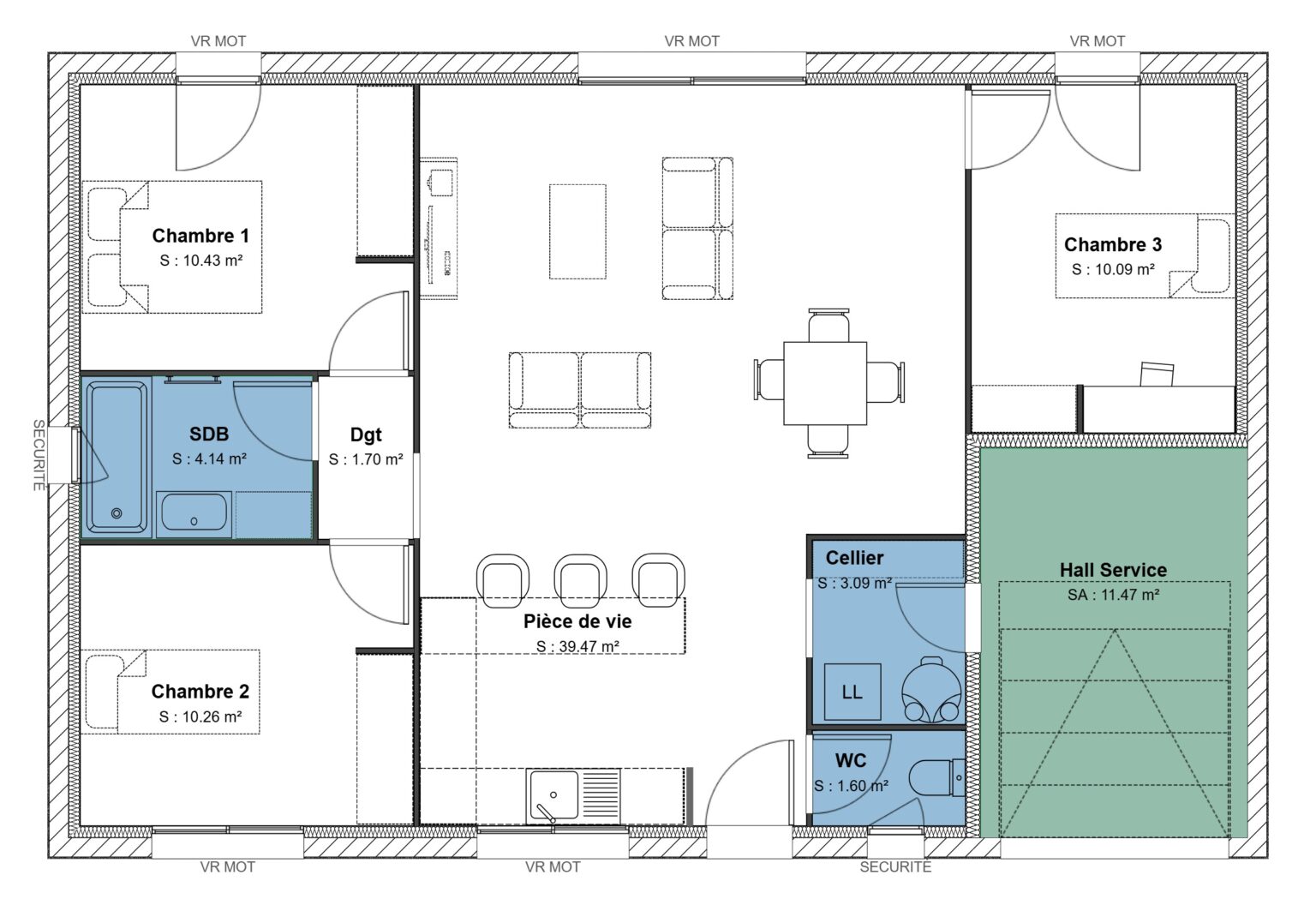
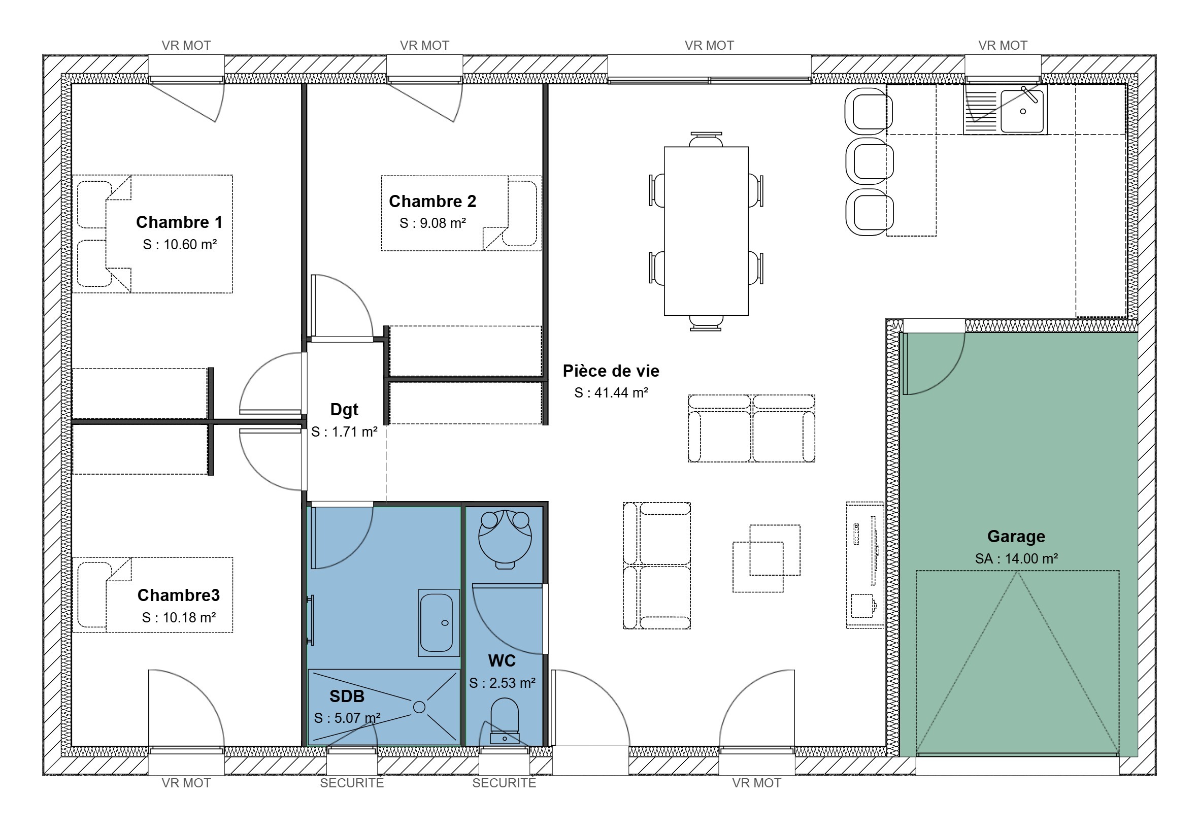
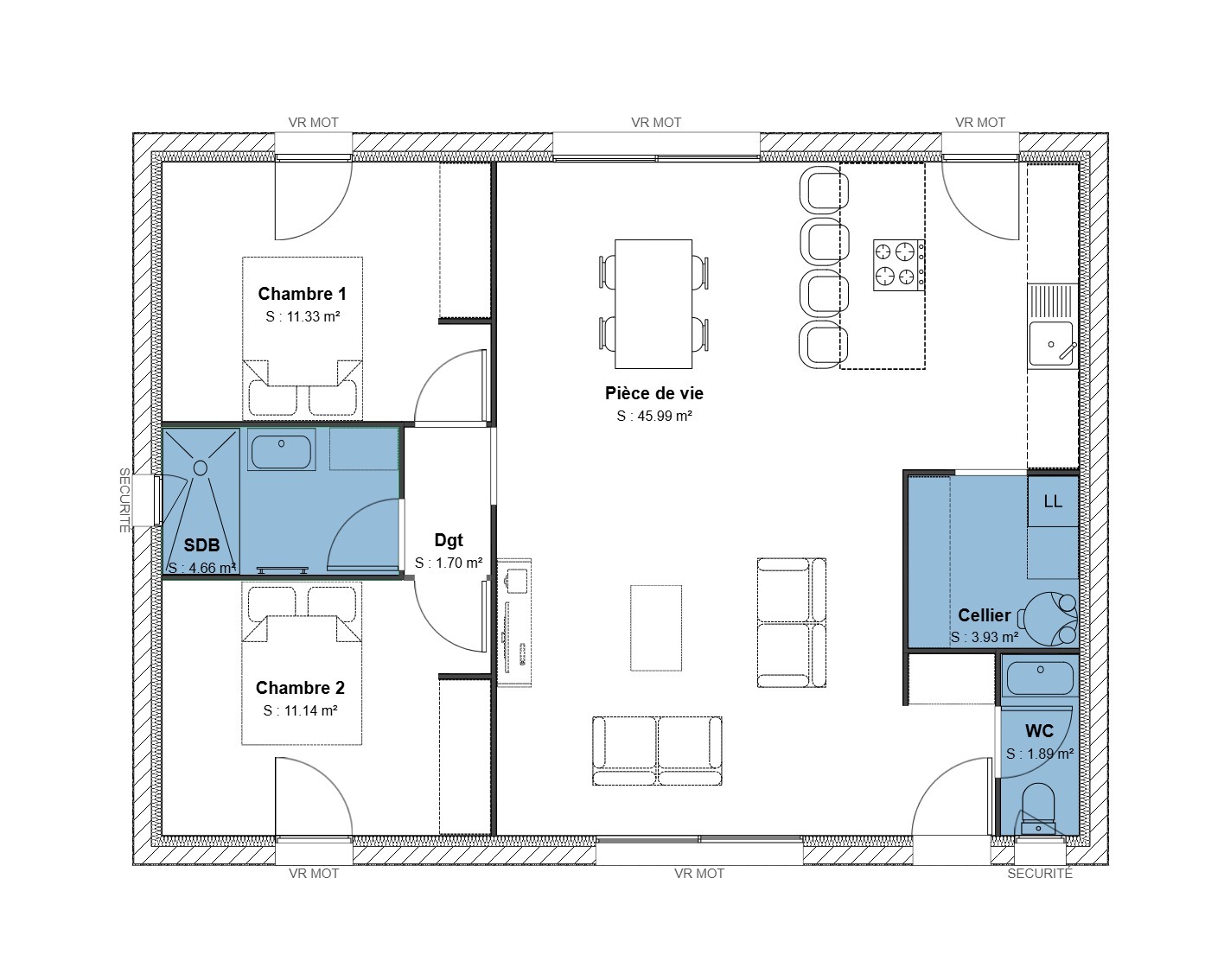
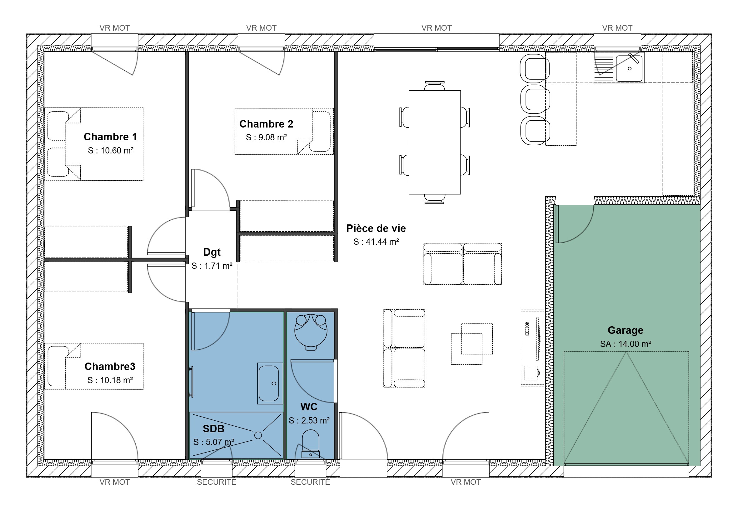
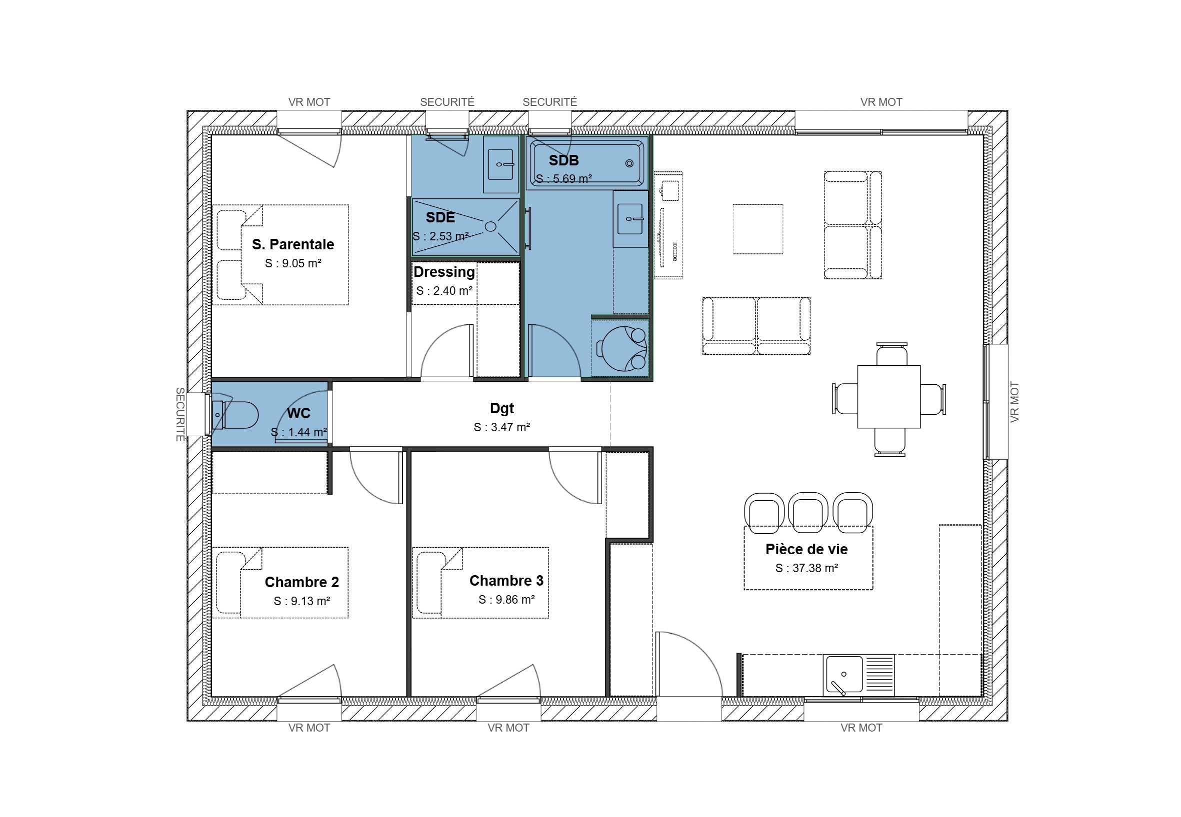
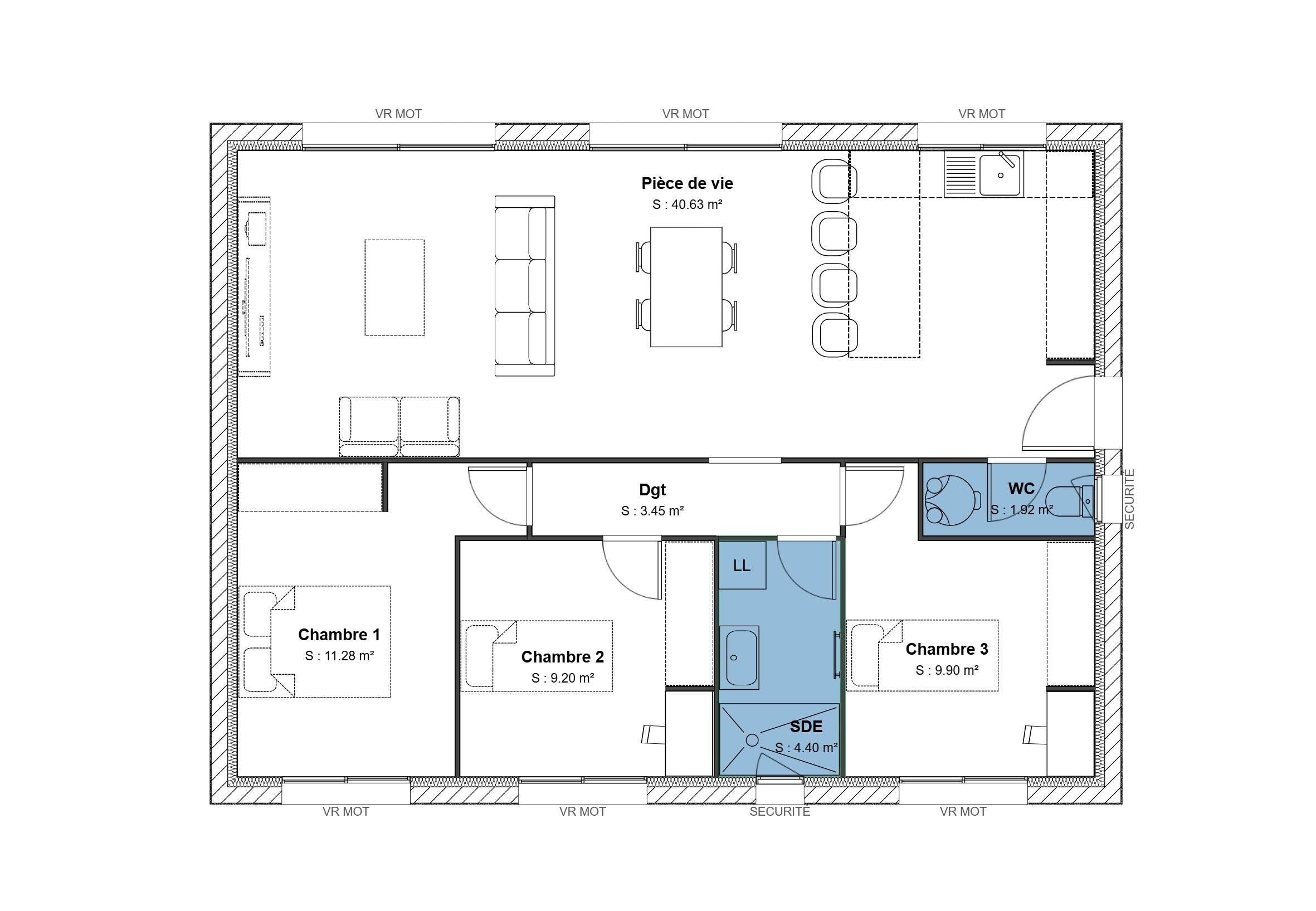
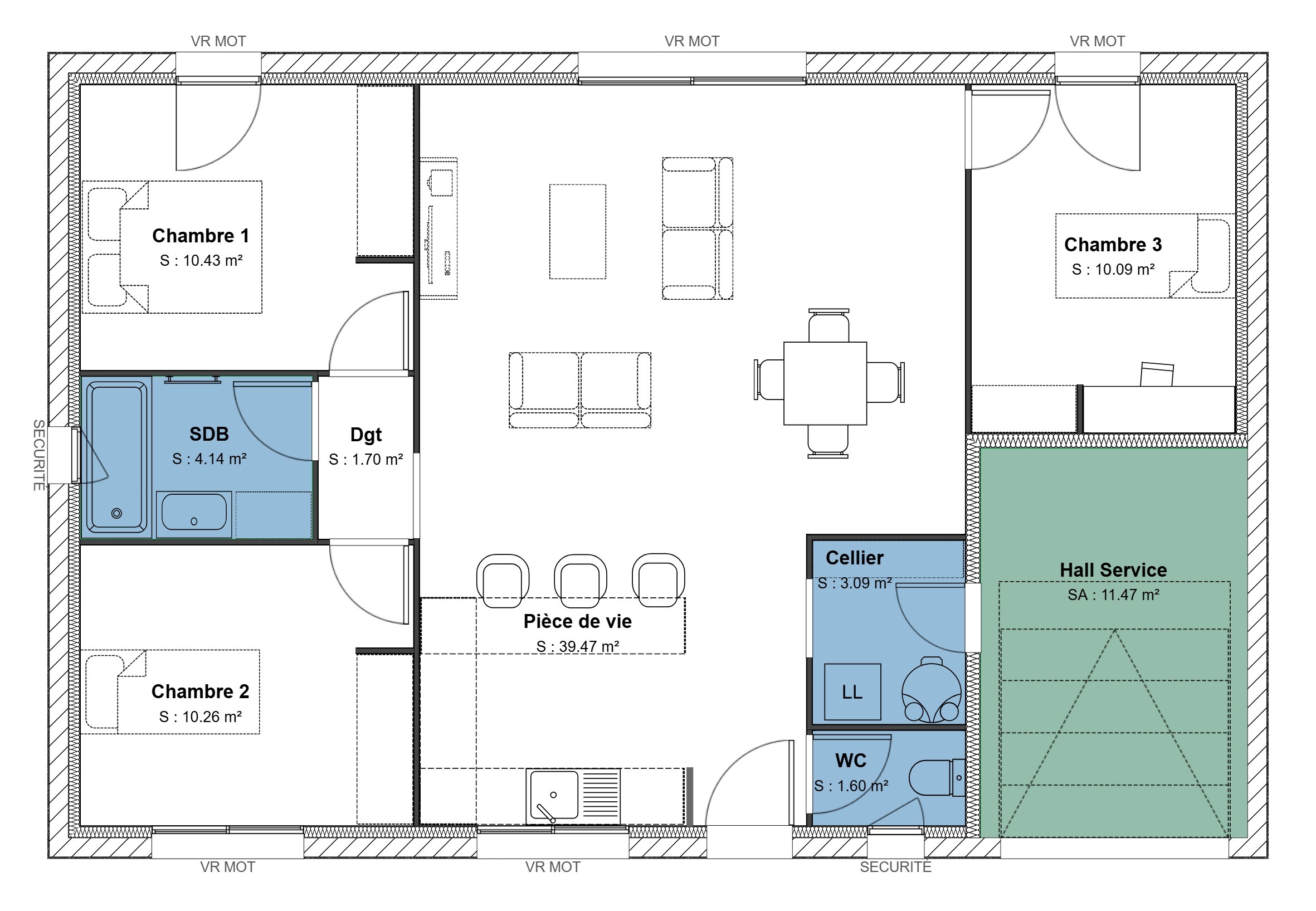
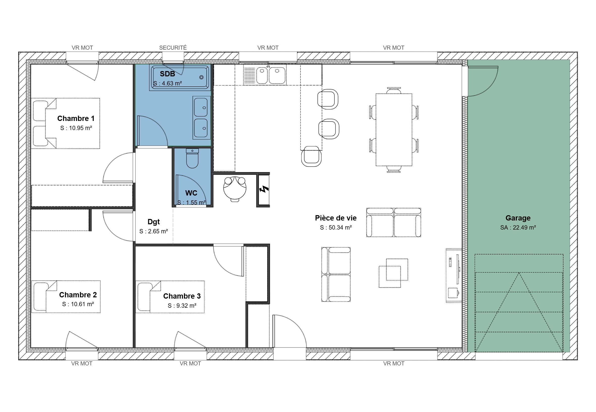
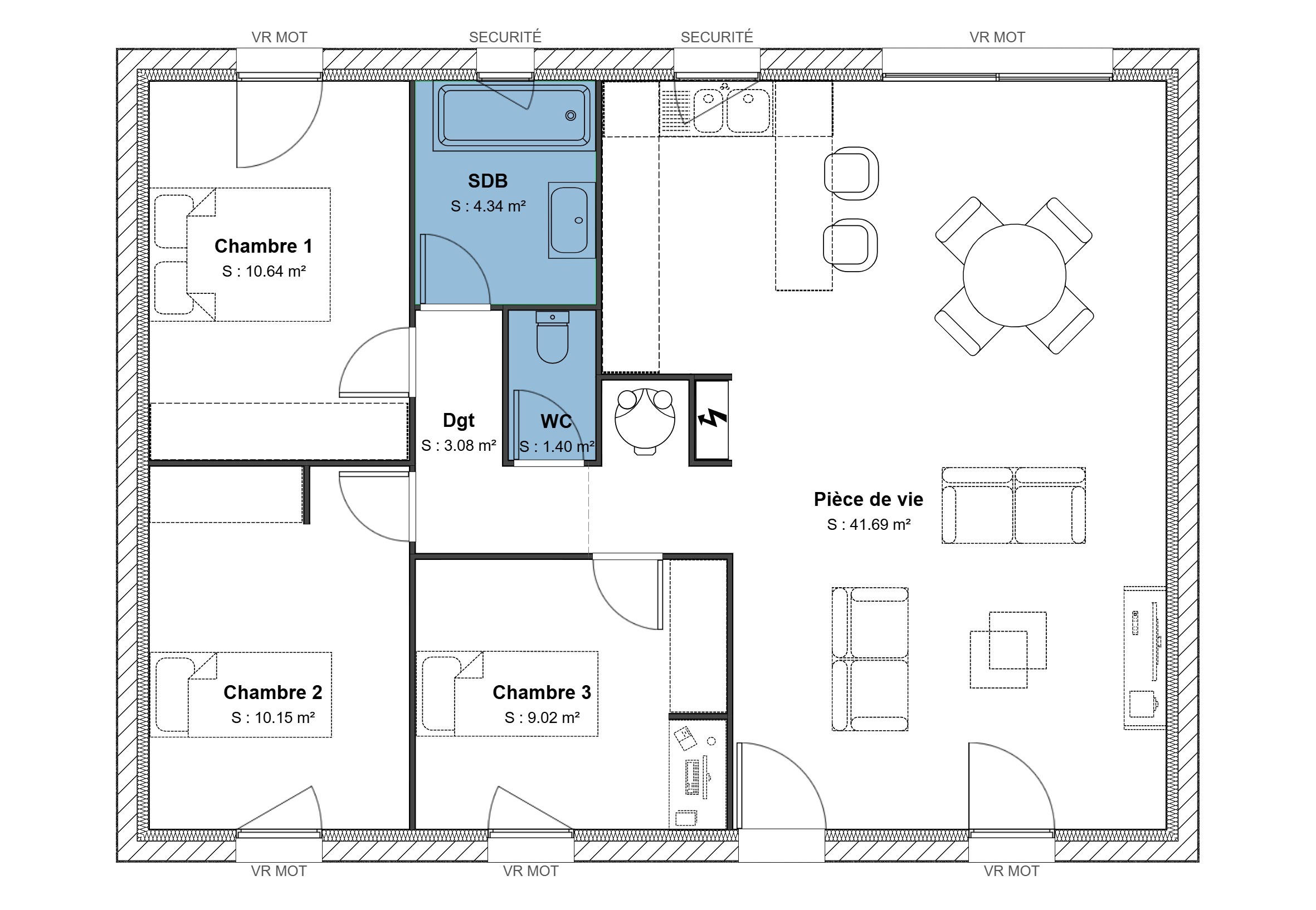
Plans de notre modèle de maison
| Surface habitable | Prix TTC | Nb de chambres | Nb suites parentales | Garage | PMR | Aperçu | |
|---|---|---|---|---|---|---|---|
|
Surface habitable
80
|
Prix TTC
113 770 €
|
Nb de chambres
2
|
Nb suites parentales
0
|
Garage
Non
|
PMR
Non
|
Télécharger le plan |
| Surface habitable | Prix TTC | Nb de chambres | Nb suites parentales | Garage | PMR | Aperçu | |
|---|---|---|---|---|---|---|---|
|
Surface habitable
80
|
Prix TTC
110 110 €
|
Nb de chambres
3
|
Nb suites parentales
0
|
Garage
Non
|
PMR
Option
|
Télécharger le plan | |
|
Surface habitable
80
|
Prix TTC
115 520 €
|
Nb de chambres
3
|
Nb suites parentales
0
|
Garage
Non
|
PMR
Non
|
Télécharger le plan | |
|
Surface habitable
80
|
Prix TTC
117 420 €
|
Nb de chambres
2
|
Nb suites parentales
1
|
Garage
Non
|
PMR
Option
|
Télécharger le plan | |
|
Surface habitable
80
|
Prix TTC
120 450 €
|
Nb de chambres
3
|
Nb suites parentales
0
|
Garage
Oui
|
PMR
Option
|
Télécharger le plan | |
|
Surface habitable
80
|
Prix TTC
120 510 €
|
Nb de chambres
3
|
Nb suites parentales
0
|
Garage
Oui
|
PMR
Option
|
Télécharger le plan | |
|
Surface habitable
80
|
Prix TTC
123 020 €
|
Nb de chambres
3
|
Nb suites parentales
0
|
Garage
Oui
|
PMR
Option
|
Télécharger le plan |
Pour en savoir plus
Visiter nos maisons
Pour aller visiter cette réalisation, il vous suffit de prendre rendez-vous.
Prendre rendez-vousContactez un conseiller
Nos conseillers sont à votre disposition pour répondre à toutes vos questions.
Être rappelé











