POP ! 90
Modèle de maison
POP ! 90
Modèle de maison POP ! 90 :
idéal pour une 1ère acquisition ou un investissement locatif
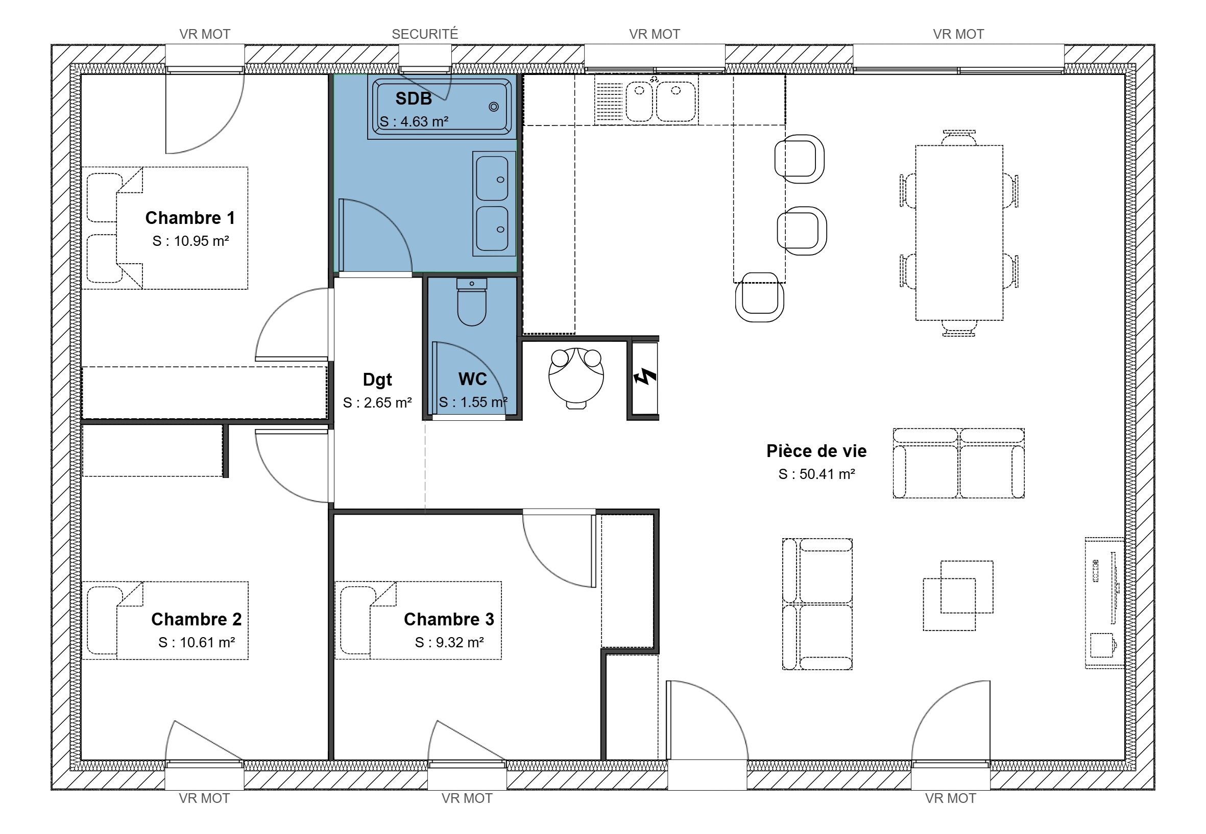
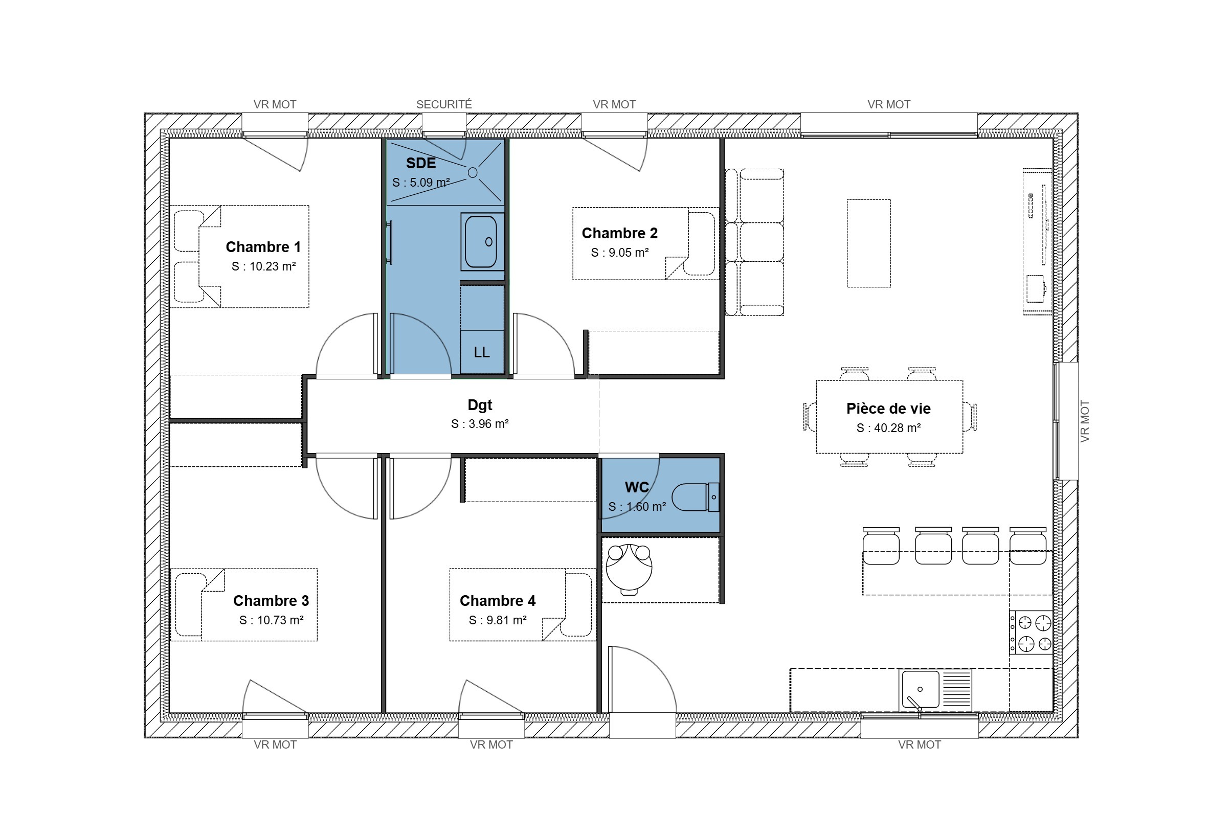
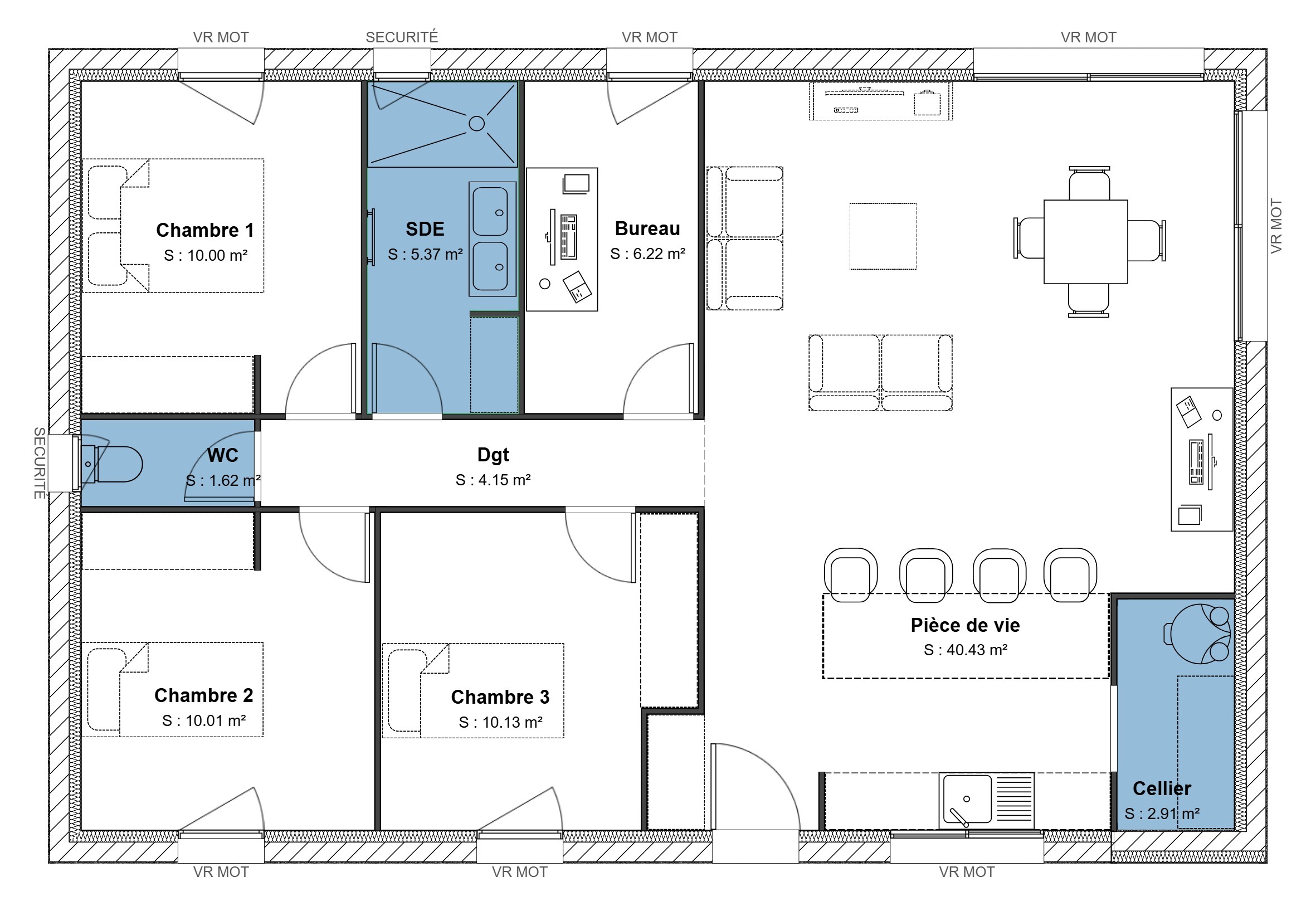
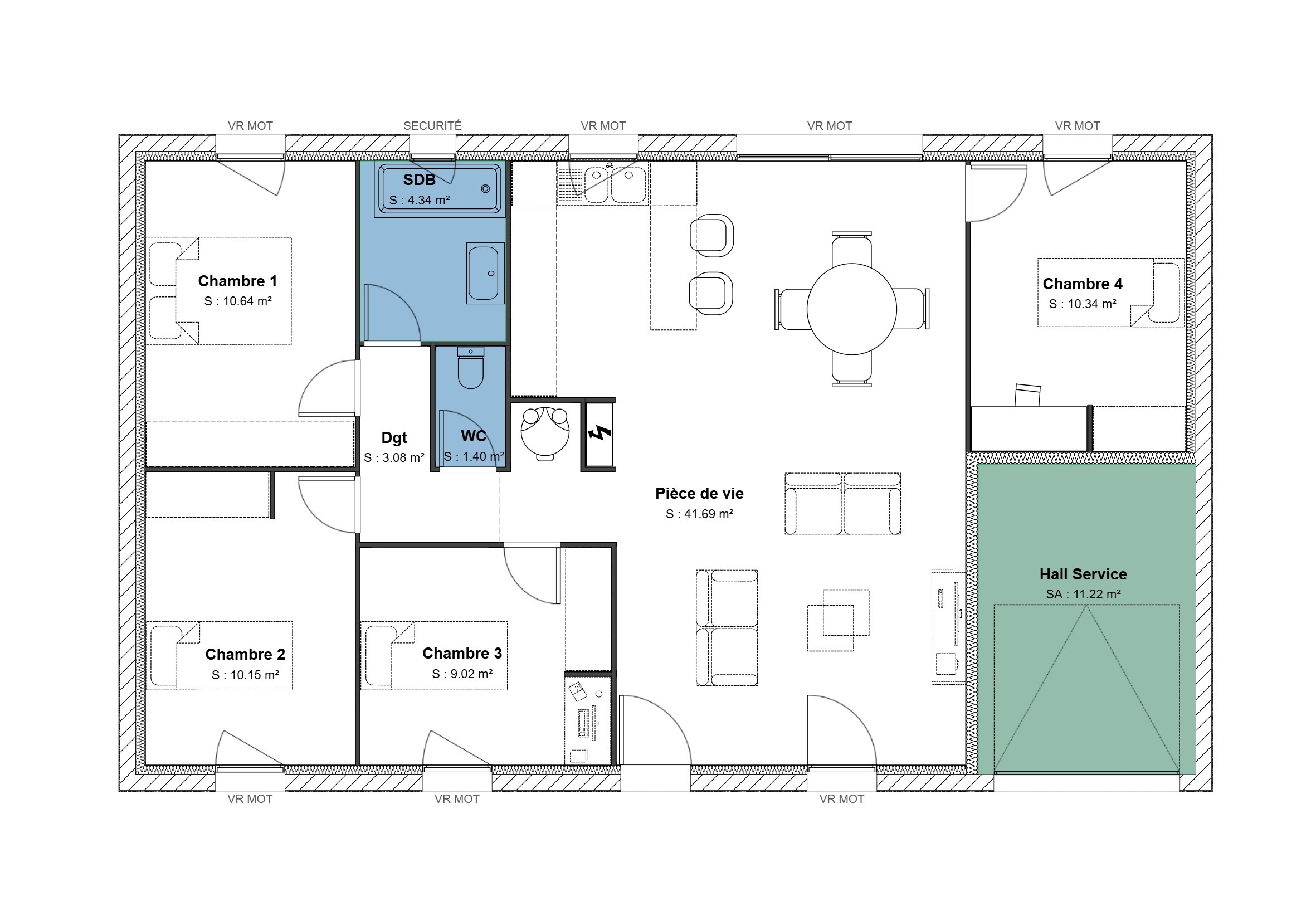
De forme rectangulaire, les plans de ce modèle sont étudiés pour permettre une occupation optimale de la maison. Disponible en versions 2 ch + suite parentale, 3 ch., 4 ch., avec ou sans garage,… POP ! 90 vous offre un large choix de plans modulables et personnalisables.
Fonctionnelle, alliant confort et équipements performants, ce modèle respecte votre pouvoir d’achat. En effet, les coûts de construction ont été optimisés pour vous proposer une maison de qualité à un prix maîtrisé. POP ! est certifié NF-Habitat, ce qui vous assure :
- Un confort thermique optimal
- Une excellente qualité de l’air intérieur grâce à des systèmes de ventilation performants
- Une maîtrise de vos consommations énergétiques (chauffage, éclairage, production d’eau chaude)
Par ailleurs, dans une maison neuve certifiée NF Habitat, une attention particulière est portée à l’isolation acoustique, la luminosité naturelle et la fonctionnalité des espaces.
POP ! 90 est un modèle de maison idéal pour une 1ère acquisition ou un investissement locatif.
POP ! vous assure un prix d’achat maîtrisé, parfait équilibre entre qualité des matériaux, efficacité énergétique et coûts de construction, vous garantissant ainsi un excellent rapport qualité-prix.
Votre plan POP ! maximise l'utilisation de l'espace disponible, favorise la lumière naturelle et assure une circulation fluide entre les pièces pour un confort de vie optimal.
Les plans du modèle POP ! existent en version PMR, assurant une autonomie et un confort accrus pour les personnes à mobilité réduite.
Pouvoir d’achat
Grâce à son prix d’achat parfaitement maîtrisé, POP ! est la solution idéale si vous disposez d’un budget un peu limité. Ce modèle de maison vous permet de devenir propriétaire.
Vous réalisez également des économies d’énergie sur la durée. En effet, grâce à ses équipements performants, vous réduisez vos consommations d’énergie et le montant de vos factures.
Idéal 1ère maison
Alliant rapidité de construction, qualité et prix maîtrisé, ce modèle est idéal pour ceux qui souhaitent faire construire pour la première fois.
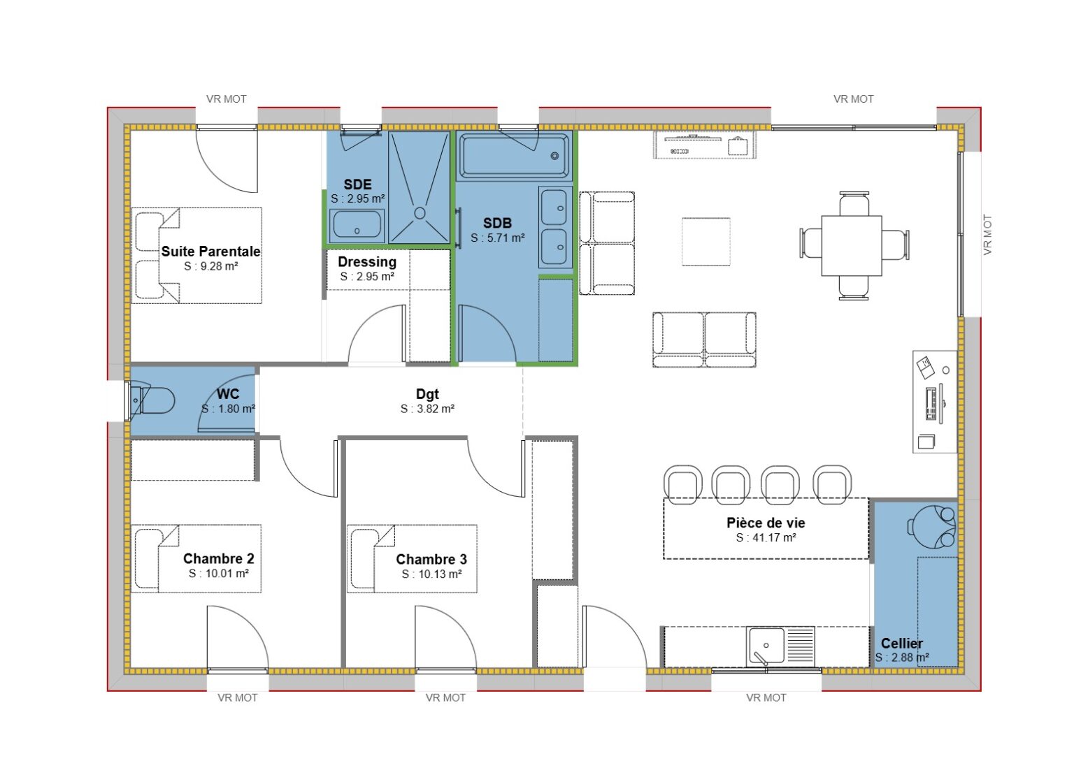
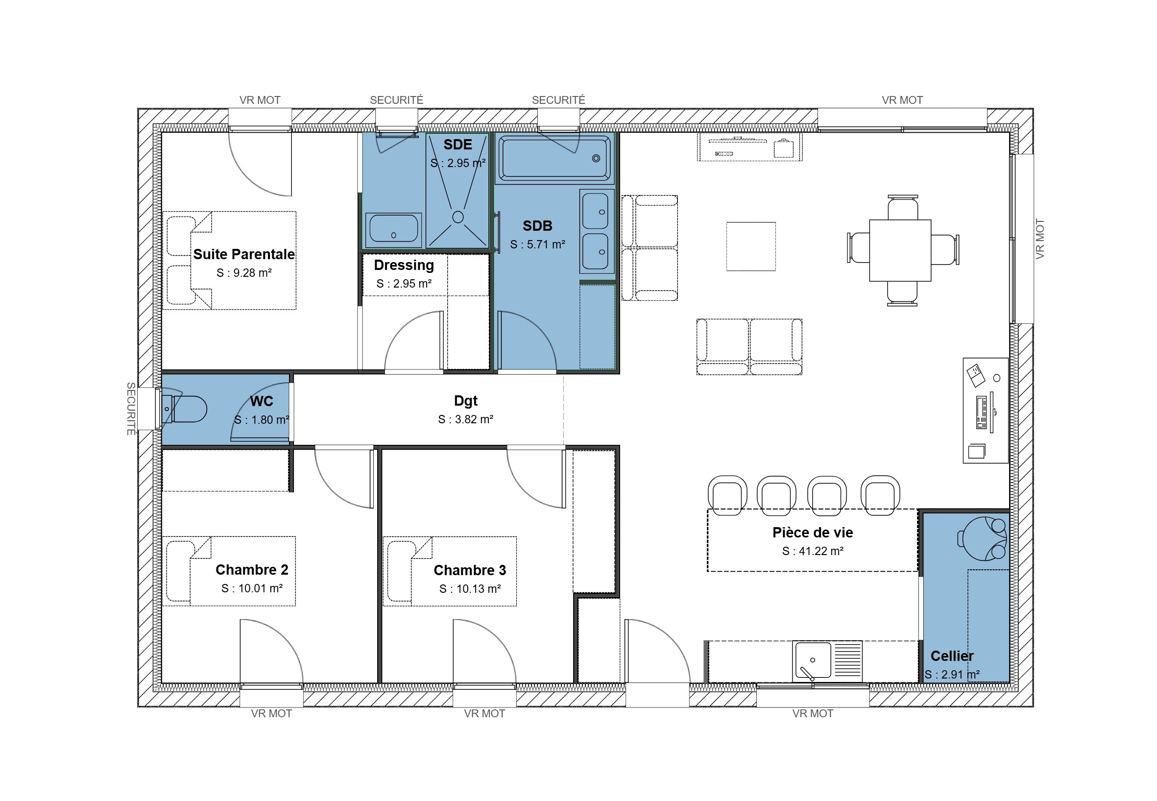
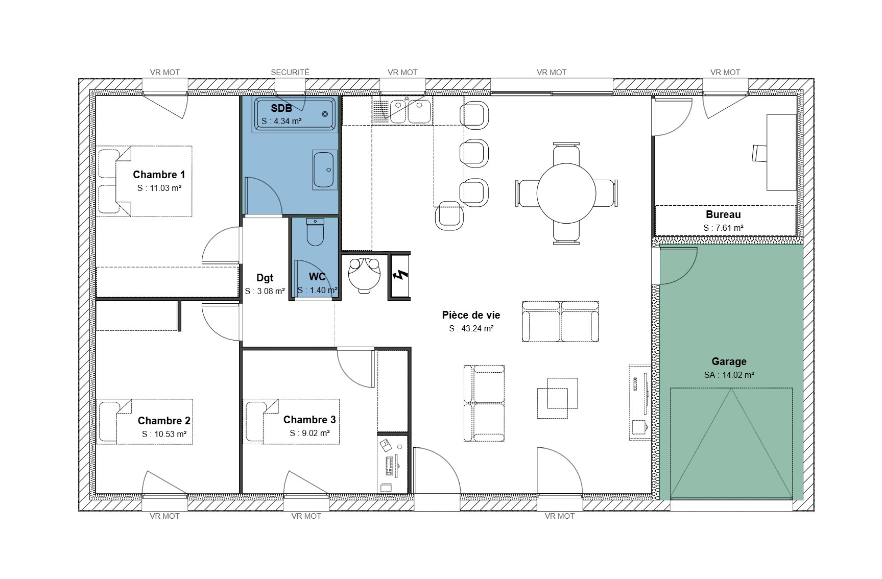
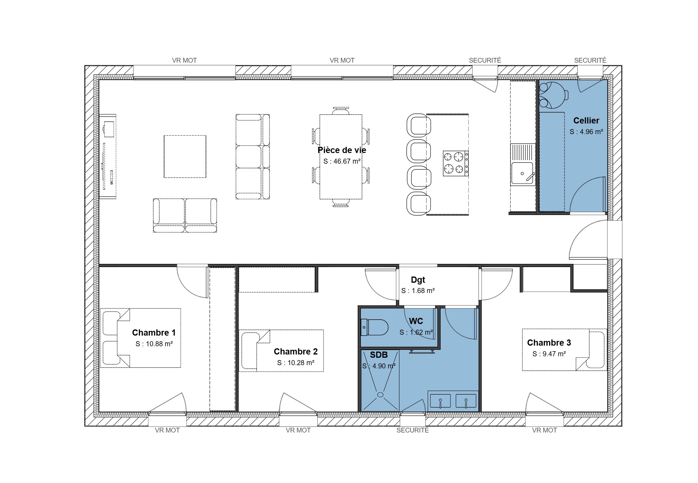
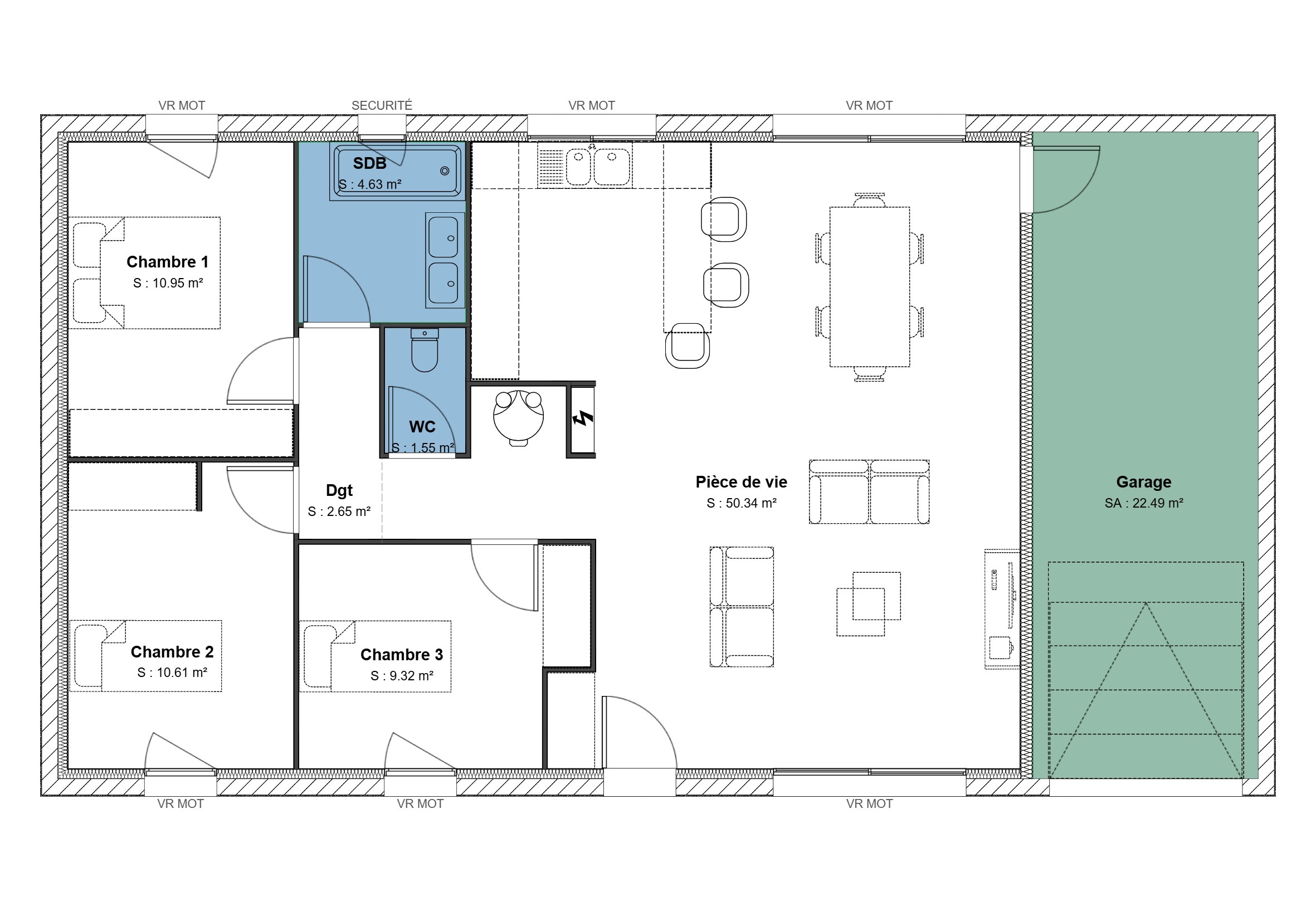
Plans de notre modèle de maison
| Surface habitable | Prix TTC | Nb de chambres | Nb suites parentales | Garage | PMR | Aperçu | |
|---|---|---|---|---|---|---|---|
|
Surface habitable
90
|
Prix TTC
119 240 €
|
Nb de chambres
3
|
Nb suites parentales
0
|
Garage
Non
|
PMR
Option
|
Télécharger le plan | |
|
Surface habitable
90
|
Prix TTC
120 790 €
|
Nb de chambres
3
|
Nb suites parentales
0
|
Garage
Non
|
PMR
Non
|
Télécharger le plan | |
|
Surface habitable
90
|
Prix TTC
124 490 €
|
Nb de chambres
3
|
Nb suites parentales
0
|
Garage
Non
|
PMR
Option
|
Télécharger le plan | |
|
Surface habitable
90
|
Prix TTC
127 960 €
|
Nb de chambres
2
|
Nb suites parentales
1
|
Garage
Non
|
PMR
Option
|
Télécharger le plan | |
|
Surface habitable
90
|
Prix TTC
129 110 €
|
Nb de chambres
3
|
Nb suites parentales
0
|
Garage
Oui
|
PMR
Non
|
Télécharger le plan | |
|
Surface habitable
90
|
Prix TTC
133 080 €
|
Nb de chambres
3
|
Nb suites parentales
0
|
Garage
Oui
|
PMR
Option
|
Télécharger le plan |
| Surface habitable | Prix TTC | Nb de chambres | Nb suites parentales | Garage | PMR | Aperçu | |
|---|---|---|---|---|---|---|---|
|
Surface habitable
90
|
Prix TTC
121 770
|
Nb de chambres
4
|
Nb suites parentales
0
|
Garage
Non
|
PMR
Non
|
Télécharger le plan | |
|
Surface habitable
90
|
Prix TTC
127 850 €
|
Nb de chambres
4
|
Nb suites parentales
0
|
Garage
Oui
|
PMR
Option
|
Télécharger le plan |
Pour en savoir plus
Visiter nos maisons
Pour aller visiter cette réalisation, il vous suffit de prendre rendez-vous.
Prendre rendez-vousContactez un conseiller
Nos conseillers sont à votre disposition pour répondre à toutes vos questions.
Être rappelé















